特性
探索我们的清单
聯繫
告诉我们您的需求

576 CASEY LOOP

房屋 待售
$1,995,000

BTC: 29.61391911

ETH: 1,023.07692308

+$330K (2025/06/20)
536 天
4 贝兹
4 浴室
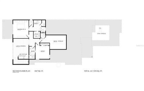
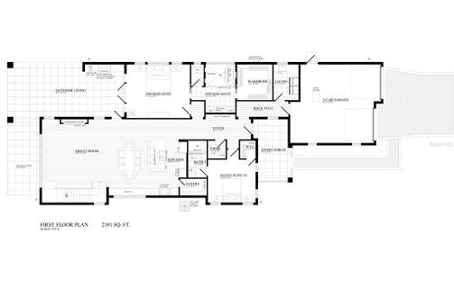
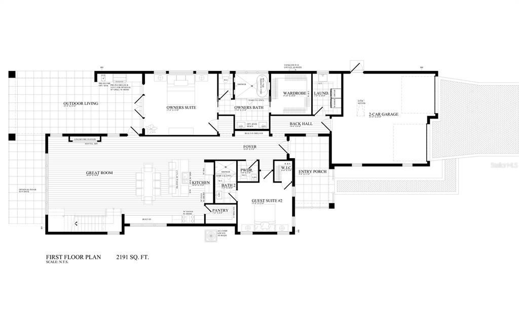
3,511 平方英尺
Est. 预计销售范围: $0 - $0
$0

总览

One or more photo(s) has been virtually staged. AVAILABLE FOR IMMEDIATE OCCUPANCY. Welcome to The Kalorama, located in Mount Dora's LAST EVER downtown custom home community. The Kalorama is presented by The Dave Cahill Company, known for decades as one of Central Florida's premier custom builders. It combines a stunning Farmhouse style exterior with a spacious, modern interior. Luxury features abound throughout. High ceilings, elegant millwork, upscale cabinetry, appliances and finishes are all here. Enjoy Florida outdoor living in the expansive lanai with a never ending view of gorgeous Lake Dora. The impeccable design also allows that breathtaking view to be enjoyed from the Master Suite, Great Room, Loft & Master Suite ll, on the second floor. Cottages on 11th is situated just a short stroll from the center of the City's quaint collection of shops and eateries. Living here will provide only twenty-seven extremely fortunate and discerning homeowners with the rare combination of luxurious living environment, small town charm and walkable lifestyle. In addition, they’ll enjoy the financial security of being surrounded by like value homes, created in perfect harmony with Mount Dora's renown Historic District.

位置

佛罗里达 MOUNT DORA 32757 房屋 待售

详情与特色

类型:
Residential
停车:
没有数据
建造年份:
2025
地段:
0.16 英亩
暖气:
Electric
价格/平方英尺:
$568
冷气:
Central Air
HOA:
$600
更多事实和特点
  • 地板

    • Carpet

    • Engineered Hardwood

    • Porcelain Tile

    暖气

    • Electric

    冷气

    • Central Air

    设备

    • Built-In Oven

    • Cooktop

    • Disposal

    • Refrigerator

    • Tankless Water Heater

    其他室内特点

    • Ceiling Fan(s)

    • Crown Molding

    • High Ceilings

    • Kitchen/Family Room Combo

    • Open Floorplan

    • Primary Bedroom Main Floor

    • Stone Counters

    • Thermostat

    • Walk-In Closet(s)

    卧室和浴室

    • 卧室: 4

    • 洗手间: 1

    • 完整的浴室: 4

  • 房屋

    • 等级: Two

    • 外观特征: Irrigation System / Outdoor Kitchen / Sliding Doors / Sprinkler Metered

    地段

    • 地段: 0.16 英亩

    其他财产信息

    • 包裹编号: 301927230000001200

  • 类型与风格

    • 财产种类: Residential

    • 属性子类型: Single Family Residence

  • 公益

    • Cable Available

    • Electricity Connected

    • Natural Gas Connected

    • Phone Available

    • Sewer Connected

    • Street Lights

    • Underground Utilities

    • Water Connected

  • 其他财政信息

    • HOA: $600

    • HOA频率: Quarterly

    • 年税额: $1,654

  • 来源细节

    • MLS ID: G5084859

    其他详情

    • 建筑材料: Block / Cement Siding / Stucco

    • 基金会详情: Slab

    • 洗衣功能: Electric Dryer Hookup / Inside / Washer Hookup

    • 天井和门廊特色: Covered / Porch / Rear Porch

    • 方向面: North

    • 建筑风格: Florida

    • 水体名称: LAKE DORA

    • 车库空间: 2

    • 附属车库: 是

    • 车库: 是

    • 生活区域: 3511

    • 水源: Public

    • 细分名称: COTTAGES ON 11TH

类似房屋

30321 ISLAND CLUB DRIVE placeholder 30321 ISLAND CLUB DRIVE
-$50K (2026/01/05)
待售
房屋
$1,450,000
5 贝兹 4 浴室 3,385 平方英尺
30321 ISLAND CLUB DRIVE
6553 CLAYTON STREET placeholder 6553 CLAYTON STREET
33 天
待售
房屋
$1,849,999
3 贝兹 3 浴室 2,774 平方英尺
6553 CLAYTON STREET
1741 EDGEWATER DRIVE placeholder 1741 EDGEWATER DRIVE
35 天
待售
房屋
$1,500,000
5 贝兹 3 浴室 5,573 平方英尺
1741 EDGEWATER DRIVE
6160 ALLEN STREET placeholder 6160 ALLEN STREET
42 天
待售
房屋
$1,400,000
3 贝兹 2 浴室 1,900 平方英尺
6160 ALLEN STREET
580 W 10TH AVENUE placeholder 580 W 10TH AVENUE
61 天
待售
房屋
$1,480,000
4 贝兹 4 浴室 4,066 平方英尺
580 W 10TH AVENUE
1016 JULIETTE BOULEVARD placeholder 1016 JULIETTE BOULEVARD
-$116K (2025/12/06)
待售
房屋
$1,649,000
5 贝兹 4 浴室 5,441 平方英尺
1016 JULIETTE BOULEVARD
631 OLD MOUNT DORA ROAD placeholder 631 OLD MOUNT DORA ROAD
-$45K (2025/12/01)
待售
房屋
$1,950,000
4 贝兹 5 浴室 5,287 平方英尺
631 OLD MOUNT DORA ROAD
1321 HEIM ROAD placeholder 1321 HEIM ROAD
88 天
待售
房屋
$1,800,000
5 贝兹 2 浴室 3,474 平方英尺
1321 HEIM ROAD

The multiple listing information is provided by the Stellar MLS from a copyrighted compilation of listings. The compilation of listings and each individual listing are ©2026-present Stellar MLS. All Rights Reserved. The information provided is for consumers' personal, noncommercial use and may not be used for any purpose other than to identify prospective properties consumers may be interested in purchasing. All properties are subject to prior sale or withdrawal. All information provided is deemed reliable but is not guaranteed accurate, and should be independently verified. Listing courtesy of: COLONY REALTY GROUP, INC.