特性
探索我们的清单
聯繫
告诉我们您的需求

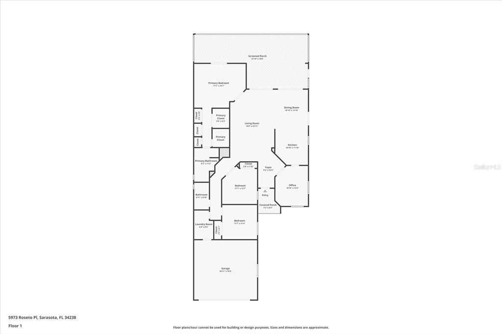
5973 ROSETO PLACE

房屋 合同活跃
$535,000

BTC: 7.64285714

ETH: 260.34063260

21 天
3 贝兹
3 浴室
2,008 平方英尺
Est. 预计销售范围: $0 - $0
$0

总览

Solid as a rock and beautiful too! This tastefully decorated, 3 bedroom plus office, 3 bath home in The Isles features an extended and screened lanai, water view, new exterior paint, and comes fully furnished. This is the Oakmont floorplan which features an office with French doors, high ceilings, a primary suite with dual ensuite baths, dual closets, plus separate soaking tub and shower. Ceramic tile floors throughout with the exception of the primary suite which features premium engineered wood plank. Enjoy peace of mind during storms; this home is built of poured concrete, includes hurricane shutters, and is in the X flood zone, has never flooded and does not require flood insurance, and is not in an evacuation zone. Recent updates include fresh exterior paint (spring 2025) and newer AC. This home has been thoughtfully maintained and is clean as a whistle. This home also includes a 2-car garage and indoor laundry room with utility sink. The Isles features well-kept amenities including a heated, lagoon-style pool, tennis courts, pickleball, playground, fitness center and bocce ball. The Isles is part of the master-planned community of Palmer Ranch, known for its convenient proximity to world-class beaches Siesta Key Beach and Nokomis Beach; bicycling and walking trail, The Legacy Trail; multiple golf courses, dining and shopping.

位置

佛罗里达 SARASOTA 34238 房屋 合同活跃

详情与特色

类型:
Residential
停车:
没有数据
建造年份:
2008
地段:
0.16 英亩
暖气:
Central
价格/平方英尺:
$266
冷气:
Central Air
HOA:
$1,330
更多事实和特点
  • 地板

    • Tile

    暖气

    • Central

    冷气

    • Central Air

    设备

    • Dishwasher

    • Disposal

    • Electric Water Heater

    • Range

    • Refrigerator

    其他室内特点

    • Ceiling Fan(s)

    • Open Floorplan

    • Primary Bedroom Main Floor

    卧室和浴室

    • 卧室: 3

    • 完整的浴室: 3

  • 房屋

    • 等级: One

    • 外观特征: Hurricane Shutters

    地段

    • 地段: 0.16 英亩

    其他财产信息

    • 包裹编号: 0137160041

    • 分区: RSF2

  • 类型与风格

    • 财产种类: Residential

    • 属性子类型: Single Family Residence

  • 公益

    • Cable Connected

    • Electricity Connected

    • Water Connected

  • 其他财政信息

    • HOA: $1,330

    • HOA频率: Quarterly

    • 年税额: $5,802

  • 来源细节

    • MLS ID: A4674753

    其他详情

    • 建筑材料: Block / Concrete

    • 基金会详情: Slab

    • 洗衣功能: Laundry Room

    • 天井和门廊特色: Rear Porch / Screened

    • 窗户功能: Window Treatments

    • 方向面: North

    • 车库空间: 2

    • 附属车库: 是

    • 车库: 是

    • 生活区域: 2008

    • 水源: Public

    • 细分名称: ISLES OF SARASOTA

类似房屋

9523 KNIGHTSBRIDGE CIRCLE placeholder 9523 KNIGHTSBRIDGE CIRCLE
2 天
合同活跃
房屋
$463,000
3 贝兹 2 浴室 2,036 平方英尺
9523 KNIGHTSBRIDGE CIRCLE
9851 CRYSTAL ISLES CIRCLE placeholder 9851 CRYSTAL ISLES CIRCLE
6 天
合同活跃
房屋
$611,990
4 贝兹 2 浴室 2,429 平方英尺
9851 CRYSTAL ISLES CIRCLE
7437 FEATHERSTONE BOULEVARD placeholder 7437 FEATHERSTONE BOULEVARD
7 天
合同活跃
房屋
$400,000
3 贝兹 2 浴室 2,360 平方英尺
7437 FEATHERSTONE BOULEVARD
178 WILLOW BEND WAY placeholder 178 WILLOW BEND WAY
8 天
合同活跃
房屋
$640,000
3 贝兹 2 浴室 1,889 平方英尺
178 WILLOW BEND WAY
8705 PEBBLE CREEK LANE placeholder 8705 PEBBLE CREEK LANE
11 天
合同活跃
房屋
$660,000
2 贝兹 2 浴室 2,223 平方英尺
8705 PEBBLE CREEK LANE
7993 MEADOW RUSH LOOP placeholder 7993 MEADOW RUSH LOOP
25 天
合同活跃
房屋
$679,000
4 贝兹 3 浴室 2,491 平方英尺
7993 MEADOW RUSH LOOP
11246 SANDHILL PRESERVE DRIVE placeholder 11246 SANDHILL PRESERVE DRIVE
29 天
合同活跃
房屋
$535,000
2 贝兹 2 浴室 1,790 平方英尺
11246 SANDHILL PRESERVE DRIVE
5934 CASPIAN TERN DRIVE placeholder 5934 CASPIAN TERN DRIVE
31 天
合同活跃
房屋
$549,900
2 贝兹 2 浴室 1,675 平方英尺
5934 CASPIAN TERN DRIVE

The multiple listing information is provided by the Stellar MLS from a copyrighted compilation of listings. The compilation of listings and each individual listing are ©2026-present Stellar MLS. All Rights Reserved. The information provided is for consumers' personal, noncommercial use and may not be used for any purpose other than to identify prospective properties consumers may be interested in purchasing. All properties are subject to prior sale or withdrawal. All information provided is deemed reliable but is not guaranteed accurate, and should be independently verified. Listing courtesy of: MICHAEL SAUNDERS & COMPANY