特性
探索我们的清单
聯繫
告诉我们您的需求

6816 HAWKINS ROAD

房屋 待售
$1,795,000

BTC: 59.83333333

ETH: 897.50000000

52 天
3 贝兹
2 浴室
2,433 平方英尺
Est. 预计销售范围: $0 - $0
$0

总览

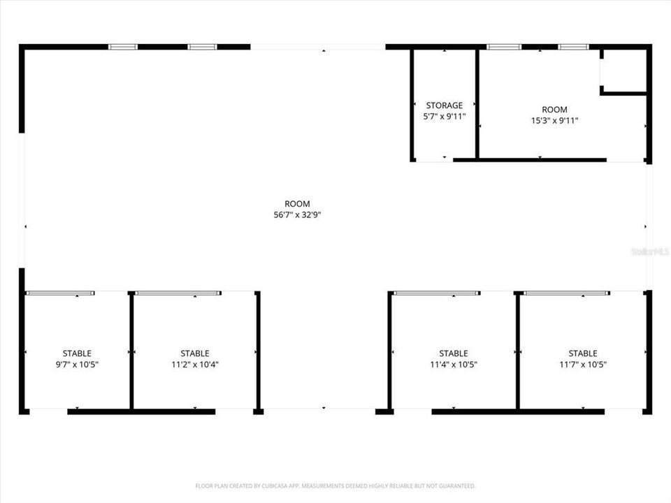
Experience the perfect blend of country living and modern luxury at this exceptional 5 acre estate located on the highly desirable Hawkins Road in Sarasota. Designed with both comfort and functionality in mind, this property offers everything for the equestrian or those seeking space, privacy and premium amenities. The main residence, built in 2011, offers approximately 2,433 square feet of living space with 3 bedrooms and 2 bathrooms and is equipped with sprayed insulation, impact doors and windows, and a whole house generator, ensuring energy efficiency and peace of mind. A renovated kitchen (2018) highlights updated cabinetry, countertops, and appliances, seamlessly blending modern finishes with everyday convenience. Additional upgrades include gutters, plant irrigation, and two tankless hot water heaters. A detached three car garage with spray insulation complements the circular drive, offering ample parking and accessibility. Outdoors, enjoy a resort style Lucas Lagoon pool, ideal for relaxing or entertaining. For equestrian enthusiasts, the property features three fenced pastures, a round pen, and a newly constructed four stall barn built of rough cut cypress with 12x12 stalls, automatic waterers, and individual attached runoffs. The barn also includes a tack room and office, providing functionality and charm. Additional highlights include an electric gated entrance, a 500 gallon propane tank, and an RV disconnect for added convenience. Every detail of this property was thoughtfully planned, from the efficient systems to the elegant outdoor living spaces, making it a true Sarasota gem that perfectly combines luxury, lifestyle and rural tranquility.

位置

佛罗里达 SARASOTA 34241 房屋 待售

详情与特色

类型:
Residential
停车:
Boat / Circular Driveway / Driveway / Garage Door Opener / Golf Cart Parking / Guest / Open / Oversized / RV Parking / Workshop in Garage
建造年份:
2011
地段:
5.00 英亩
暖气:
Central / Electric
价格/平方英尺:
$738
冷气:
Central Air
HOA:
没有数据
更多事实和特点
  • 地板

    • Carpet

    • Tile

    暖气

    • Central

    • Electric

    冷气

    • Central Air

    设备

    • Bar Fridge

    • Convection Oven

    • Dishwasher

    • Disposal

    • Dryer

    • Exhaust Fan

    • Gas Water Heater

    • Microwave

    • Range

    • Refrigerator

    • Tankless Water Heater

    • Washer

    • Wine Refrigerator

    其他室内特点

    • Ceiling Fan(s)

    • Central Vacuum

    • Crown Molding

    • High Ceilings

    • Open Floorplan

    • Primary Bedroom Main Floor

    • Solid Wood Cabinets

    • Split Bedroom

    • Stone Counters

    • Tray Ceiling(s)

    • Walk-In Closet(s)

    卧室和浴室

    • 卧室: 3

    • 完整的浴室: 2

  • 停车

    • Boat

    • Circular Driveway

    • Driveway

    • Garage Door Opener

    • Golf Cart Parking

    • Guest

    • Open

    • Oversized

    • RV Parking

    • Workshop in Garage

    房屋

    • 等级: One

    • 私人泳池: 是

    • 外观特征: Irrigation System / Lighting / Private Mailbox / Rain Gutters / Sliding Doors / Storage

    地段

    • 地段: 5.00 英亩

    其他财产信息

    • 包裹编号: 0286080002

    • 分区: OUE

  • 类型与风格

    • 财产种类: Residential

    • 属性子类型: Single Family Residence

  • 公益

    • Cable Connected

    • Electricity Connected

  • 其他财政信息

    • 年税额: $8,038

  • 来源细节

    • MLS ID: A4668269

    其他详情

    • 建筑材料: Block / Stucco

    • 基金会详情: Slab

    • 壁炉功能: Gas / Living Room / Master Bedroom

    • 洗衣功能: Laundry Room

    • 地段特征: Flag Lot / In County / Landscaped / Level / Oversized Lot / Private

    • 天井和门廊特色: Deck / Patio / Porch / Screened

    • 泳池特色: Gunite / In Ground / Screen Enclosure / Solar Heat

    • 窗户功能: Double Pane Windows

    • 方向面: South

    • 其他结构: Barn(s) / Workshop

    • 建筑风格: Custom / Ranch / Traditional

    • 壁炉: 是

    • 车库空间: 5

    • 附属车库: 是

    • 车库: 是

    • 生活区域: 2433

    • 水源: Well

    • 细分名称: ACREAGE & UNREC

类似房屋

10215 MILKY WAY CIRCLE placeholder 10215 MILKY WAY CIRCLE
待售
房屋
$1,269,000
5 贝兹 4 浴室 3,848 平方英尺
10215 MILKY WAY CIRCLE
9451 TEQUILA SUNRISE DRIVE placeholder 9451 TEQUILA SUNRISE DRIVE
8 天
待售
房屋
$1,400,000
3 贝兹 3 浴室 3,312 平方英尺
9451 TEQUILA SUNRISE DRIVE
9224 STARRY NIGHT AVENUE placeholder 9224 STARRY NIGHT AVENUE
12 天
待售
房屋
$2,295,000
3 贝兹 3 浴室 3,396 平方英尺
9224 STARRY NIGHT AVENUE
8687 WOODBRIAR DRIVE placeholder 8687 WOODBRIAR DRIVE
-$75K (2025/10/10)
待售
房屋
$1,375,000
4 贝兹 4 浴室 3,024 平方英尺
8687 WOODBRIAR DRIVE
7729 RED CEDAR LANE placeholder 7729 RED CEDAR LANE
-$241K (2025/10/21)
待售
房屋
$1,749,000
6 贝兹 5 浴室 5,027 平方英尺
7729 RED CEDAR LANE
7421 WEEPING WILLOW BOULEVARD placeholder 7421 WEEPING WILLOW BOULEVARD
139 天
待售
房屋
$1,295,000
5 贝兹 3 浴室 3,763 平方英尺
7421 WEEPING WILLOW BOULEVARD
6302 ANISE DRIVE placeholder 6302 ANISE DRIVE
-$41K (2025/10/18)
待售
房屋
$1,259,000
5 贝兹 3 浴室 4,331 平方英尺
6302 ANISE DRIVE
4588 BAYCEDAR LANE placeholder 4588 BAYCEDAR LANE
-$33K (2025/07/14)
待售
房屋
$1,456,500
6 贝兹 4 浴室 3,621 平方英尺
4588 BAYCEDAR LANE

The multiple listing information is provided by the Stellar MLS from a copyrighted compilation of listings. The compilation of listings and each individual listing are ©2025-present Stellar MLS. All Rights Reserved. The information provided is for consumers' personal, noncommercial use and may not be used for any purpose other than to identify prospective properties consumers may be interested in purchasing. All properties are subject to prior sale or withdrawal. All information provided is deemed reliable but is not guaranteed accurate, and should be independently verified. Listing courtesy of: COMPASS FLORIDA LLC