特性
探索我们的清单
聯繫
告诉我们您的需求

704 MISSISSIPPI AVENUE

房屋 待售
$239,000

BTC: 7.96666667

ETH: 119.50000000

6 天
1 贝兹
1 浴室
843 平方英尺
Est. 预计销售范围: $0 - $0
$0

总览

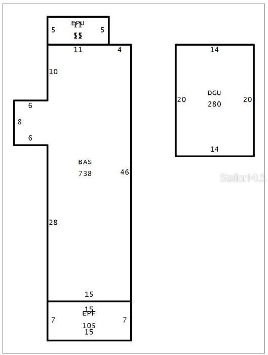
Investor Opportunity! This home could be updated or demolished. The lot is zoned SR2 and is 76x150, with a lot of potential. You could build a single family home or a duplex. There's also a 20x14 detached garage in the back of the property.

位置

佛罗里达 ST CLOUD 34769 房屋 待售

详情与特色

类型:
Residential
停车:
没有数据
建造年份:
1925
地段:
0.26 英亩
暖气:
Central
价格/平方英尺:
$284
冷气:
Central Air
HOA:
没有数据
更多事实和特点
  • 地板

    • Hardwood

    暖气

    • Central

    冷气

    • Central Air

    设备

    • Electric Water Heater

    其他室内特点

    • Ninguno

    卧室和浴室

    • 卧室: 1

    • 完整的浴室: 1

  • 房屋

    • 等级: One

    • 外观特征: None

    地段

    • 地段: 0.26 英亩

    其他财产信息

    • 包裹编号: 012630000100590040

    • 分区: SR2

  • 类型与风格

    • 财产种类: Residential

    • 属性子类型: Single Family Residence

  • 公益

    • Public

  • 其他财政信息

    • 年税额: $2,518

  • 来源细节

    • MLS ID: S5139355

    其他详情

    • 建筑材料: Wood Frame

    • 基金会详情: Crawlspace

    • 洗衣功能: Laundry Room

    • 方向面: East

    • 车库空间: 1

    • 车库: 是

    • 生活区域: 843

    • 水源: Public

    • 地块大小: 76 x 150

    • 细分名称: ST CLOUD 2ND TOWN OF

类似房屋

3401 HOME TOWN LANE placeholder 3401 HOME TOWN LANE
待售
联排别墅
$275,000
3 贝兹 2 浴室 1,527 平方英尺
3401 HOME TOWN LANE
MASSACHUSETTS AVENUE placeholder MASSACHUSETTS AVENUE
11 天
待售
地段/土地
$239,900
0 room(s)
MASSACHUSETTS AVENUE
1113 MICHIGAN AVENUE placeholder 1113 MICHIGAN AVENUE
14 天
待售
地段/土地
$225,000
0 room(s)
1113 MICHIGAN AVENUE
1200 CONNECTICUT AVENUE placeholder 1200 CONNECTICUT AVENUE
15 天
待售
房屋
$279,900
3 贝兹 1 浴室 1,821 平方英尺
1200 CONNECTICUT AVENUE
1200 CONNECTICUT AVENUE placeholder 1200 CONNECTICUT AVENUE
15 天
待售
商业的
$279,900
0 room(s) 1,821 平方英尺
1200 CONNECTICUT AVENUE
1788 CHRISTINA LEE LANE placeholder 1788 CHRISTINA LEE LANE
19 天
待售
联排别墅
$290,000
3 贝兹 2 浴室 1,364 平方英尺
1788 CHRISTINA LEE LANE
2906 CIALELLA PASS placeholder 2906 CIALELLA PASS
21 天
待售
房屋
$305,000
3 贝兹 2 浴室 1,090 平方英尺
2906 CIALELLA PASS
2909 CANOE CIRCLE placeholder 2909 CANOE CIRCLE
35 天
待售
房屋
$300,000
3 贝兹 2 浴室 1,208 平方英尺
2909 CANOE CIRCLE

The multiple listing information is provided by the Stellar MLS from a copyrighted compilation of listings. The compilation of listings and each individual listing are ©2025-present Stellar MLS. All Rights Reserved. The information provided is for consumers' personal, noncommercial use and may not be used for any purpose other than to identify prospective properties consumers may be interested in purchasing. All properties are subject to prior sale or withdrawal. All information provided is deemed reliable but is not guaranteed accurate, and should be independently verified. Listing courtesy of: DUNNICK REAL ESTATE COMPANY