特性
探索我们的清单
聯繫
告诉我们您的需求

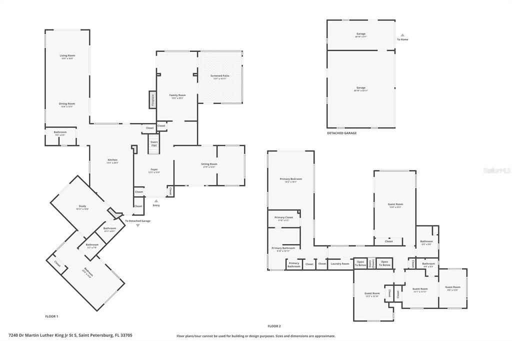
7240 DR MARTIN LUTHER KING JR STREET S

房屋 待售
$2,995,000

BTC: 99.83333333

ETH: 1,497.50000000

24 天
滨水区
5 贝兹
6 浴室
4,456 平方英尺
Est. 预计销售范围: $0 - $0
$0

总览

There are homes… and then there are landmarks. And here, in the timeless beauty of St. Petersburg’s treasured Pinellas Point, stands one of the most captivating waterfront estates on Tampa Bay. Built in 1925, this grand Spanish-Style estate is one of the originals - an enduring piece of our city’s history that has been thoughtfully preserved and masterfully updated for today’s modern coastal lifestyle. Inside, more than 4,400 square feet of refined living space unfolds with grace and purpose. Five bedrooms, six full baths, a formal library, and a stately wood-burning fireplace create an atmosphere of warmth, elegance, and architectural authenticity. The home has been beautifully refreshed with new flooring, interior paint, updated windows and doors, and efficient ductless HVAC systems throughout. Modern convenience meets timeless craftsmanship. Step outside and the world opens up - lush tropical gardens, a sparkling swimming pool, and unbelievable, unobstructed views of Tampa Bay and the iconic Sunshine Skyway Bridge. A custom dock and deck with boat cradle lift extend gracefully into the bay, inviting sunset cruises and early-morning adventures. The property spans over half an acre of gated privacy with custom fencing, an electronic entry gate, an irrigation system on reclaimed water, and a detached three-car garage. This is more than a home - it is a legacy. A rare waterfront estate where history, architecture, and natural beauty converge to tell one magnificent story… and where the next chapter begins.

位置

详情与特色

类型:
Residential
停车:
Garage Door Opener
建造年份:
1925
地段:
0.58 英亩
暖气:
Electric
价格/平方英尺:
$672
冷气:
Mini-Split Unit(s)
HOA:
没有数据
更多事实和特点
  • 地板

    • Hardwood

    暖气

    • Electric

    冷气

    • Mini-Split Unit(s)

    设备

    • Built-In Oven

    • Cooktop

    • Dishwasher

    • Disposal

    • Microwave

    • Refrigerator

    其他室内特点

    • Ceiling Fan(s)

    • High Ceilings

    • Primary Bedroom Main Floor

    • PrimaryBedroom Upstairs

    • Split Bedroom

    • Stone Counters

    • Walk-In Closet(s)

    • Window Treatments

    卧室和浴室

    • 卧室: 5

    • 完整的浴室: 6

  • 停车

    • Garage Door Opener

    房屋

    • 等级: Two

    • 私人泳池: 是

    • 外观特征: Balcony / French Doors / Garden / Irrigation System / Outdoor Shower

    地段

    • 地段: 0.58 英亩

    其他财产信息

    • 包裹编号: 183217724140010110

  • 类型与风格

    • 财产种类: Residential

    • 属性子类型: Single Family Residence

  • 公益

    • Public

  • 其他财政信息

    • 年税额: $15,490

  • 来源细节

    • MLS ID: TB8446538

    其他详情

    • 建筑材料: Block / Concrete

    • 基金会详情: Block

    • 壁炉功能: Masonry / Wood Burning

    • 洗衣功能: Inside / Upper Level

    • 地段特征: Cul-De-Sac / Oversized Lot

    • 天井和门廊特色: Covered / Enclosed / Patio / Porch / Rear Porch

    • 泳池特色: Gunite / In Ground

    • 方向面: North

    • 建筑风格: Mediterranean

    • 滨水区: 是

    • 壁炉: 是

    • 水体名称: TAMPA BAY - GULF OF AMERICA

    • 车库空间: 3

    • 附属车库: 是

    • 车库: 是

    • 生活区域: 4456

    • 水源: Private

    • 细分名称: POINT PINELLAS REP

类似房屋

2970 68TH AVENUE S placeholder 2970 68TH AVENUE S
-$200K (2025/11/26)
待售
房屋
$3,700,000
4 贝兹 3 浴室 3,670 平方英尺
2970 68TH AVENUE S
6760 29TH STREET S placeholder 6760 29TH STREET S
-$1K (2025/11/08)
待售
房屋
$2,499,000
4 贝兹 4 浴室 3,699 平方英尺
6760 29TH STREET S
4441 POMPANO DRIVE SE placeholder 4441 POMPANO DRIVE SE
36 天
待售
房屋
$3,695,000
4 贝兹 5 浴室 4,556 平方英尺
4441 POMPANO DRIVE SE
2936 68TH AVENUE S placeholder 2936 68TH AVENUE S
-$500K (2025/12/03)
待售
房屋
$2,500,000
4 贝兹 2 浴室 3,062 平方英尺
2936 68TH AVENUE S
6620 COLONY DRIVE S placeholder 6620 COLONY DRIVE S
-$5K (2025/12/04)
待售
房屋
$2,845,000
5 贝兹 5 浴室 4,884 平方英尺
6620 COLONY DRIVE S
585 DOLPHIN AVENUE SE placeholder 585 DOLPHIN AVENUE SE
-$400K (2025/10/30)
待售
房屋
$2,999,000
4 贝兹 4 浴室 3,960 平方英尺
585 DOLPHIN AVENUE SE
218 COLONY POINT ROAD S placeholder 218 COLONY POINT ROAD S
186 天
待售
房屋
$3,200,000
4 贝兹 3 浴室 3,278 平方英尺
218 COLONY POINT ROAD S

The multiple listing information is provided by the Stellar MLS from a copyrighted compilation of listings. The compilation of listings and each individual listing are ©2025-present Stellar MLS. All Rights Reserved. The information provided is for consumers' personal, noncommercial use and may not be used for any purpose other than to identify prospective properties consumers may be interested in purchasing. All properties are subject to prior sale or withdrawal. All information provided is deemed reliable but is not guaranteed accurate, and should be independently verified. Listing courtesy of: NEXTHOME SOUTH POINTE