特性
探索我们的清单
聯繫
告诉我们您的需求

838 MONTEREY BOULEVARD NE

房屋 待售
$4,995,000

BTC: 74.14612829

ETH: 2,601.56250000

38 天
滨水区
5 贝兹
5 浴室
4,334 平方英尺
Est. 预计销售范围: $0 - $0
$0

总览

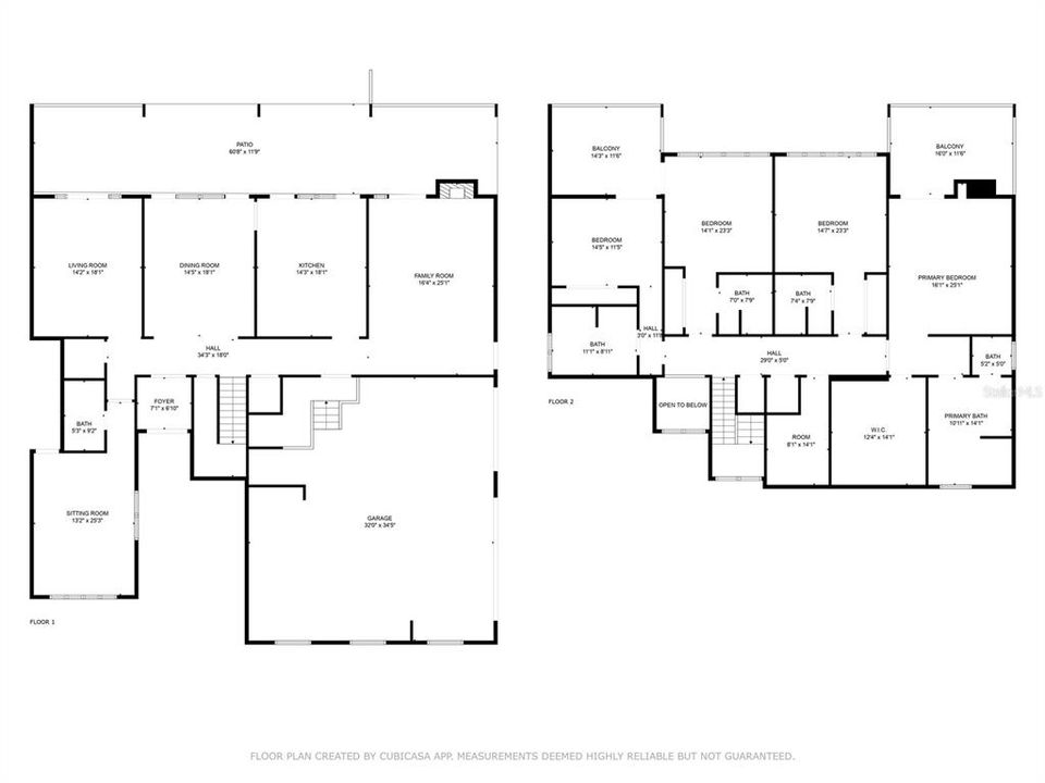
Designed by renowned Architect William Harvard Jr and built in 2005, this waterfront modern marvel boasts a beautiful layout and a wonderful view in a highly desirable location of Snell Isle. This home was built like a bunker, and was certainly tested during the recent storms, with no damage or interior flooding. The home sits above the flood plane, and the exterior walls are concrete block with filled cells, and with structural steel studs. Interior walls are also concrete block with prestressed concrete planks for ceiling and roof support. The floor construction is concrete under the beautiful hardwoods. The home also features a new roof in 2024, hurricane windows and doors throughout, and a whole house generator so you don't lose power in any storm. Beyond the best construction, this is an artist's home, where natural light fills the spacious rooms, and provides grand wall space with 10' ceilings on the first floor. Enter through the custom metal front doors into a two story foyer. To the left is a beautiful formal living room and large hall closet that could be turned into a butler's pantry or wet bar. The large first floor den also features a full bath, and could be used as a downstairs primary or guest room. For the ultimate entertainer, the formal dining room connects to the chef's kitchen, featuring a professional 6 burner Thermador range and large eat-at island with custom red quartz. The cozy family room features a gas fireplace and inlaid wood floors. Every living space features french doors that open to the Spanish tiled porch that spans the width of the home, the ideal place to enjoy the morning air or evening beauty of Coffee Pot Bayou. When it is time to retire for the night, take the elevator to the second floor, featuring 8' ceilings, wood and carpet floors. Three bedrooms upstairs all feature en-suite bathrooms with cast iron tubs, custom vanities and countertops, and waterfront views. Down the hall is a large laundry room with great storage. The master suite features a large walk-in closet and large bathroom with shower, garden tub, toilet room, dressing area, and custom double vanity. All bedrooms on the second floor have doors to two covered porches, where you can enjoy a morning coffee overlooking your private yard and updated dock on the bayou. The dock was rebuilt in 2024 and has both a boat lift and jet ski lift. A massive three car garage has high ceilings and bonus storage areas, and can accommodate a car lover's lifts for multiple vehicles and toys. Just minutes to downtown St Petersburg, this beautiful Snell Isle home was built to last, and its modern design make it timeless. Make your private showing appointment today!

位置

详情与特色

类型:
Residential
停车:
没有数据
建造年份:
2005
地段:
0.28 英亩
暖气:
Central
价格/平方英尺:
$1,153
冷气:
Central Air
HOA:
没有数据
更多事实和特点
  • 地板

    • Carpet

    • Tile

    • Hardwood

    暖气

    • Central

    冷气

    • Central Air

    设备

    • Convection Oven

    • Dishwasher

    • Disposal

    • Dryer

    • Exhaust Fan

    • Gas Water Heater

    • Microwave

    • Range Hood

    • Refrigerator

    • Tankless Water Heater

    • Washer

    其他室内特点

    • Elevator

    • High Ceilings

    • Thermostat

    • Walk-In Closet(s)

    • Window Treatments

    卧室和浴室

    • 卧室: 5

    • 完整的浴室: 5

  • 房屋

    • 等级: Two

    • 外观特征: Balcony / Irrigation System / Lighting

    地段

    • 地段: 0.28 英亩

    其他财产信息

    • 包裹编号: 083117836640030140

  • 类型与风格

    • 财产种类: Residential

    • 属性子类型: Single Family Residence

  • 公益

    • BB/HS Internet Available

    • Cable Connected

    • Electricity Connected

    • Fiber Optics

    • Natural Gas Connected

    • Phone Available

  • 其他财政信息

    • 年税额: $15,113

  • 来源细节

    • MLS ID: TB8452164

    其他详情

    • 建筑材料: Block / Concrete

    • 基金会详情: Slab

    • 壁炉功能: Gas / Living Room

    • 洗衣功能: Laundry Room

    • 窗户功能: Blinds / Low-Emissivity Windows / Storm Window(s) / Window Treatments / Wood Frames

    • 方向面: Northwest

    • 滨水区: 是

    • 壁炉: 是

    • 水体名称: COFFEE POT BAYOU

    • 车库空间: 3

    • 附属车库: 是

    • 车库: 是

    • 生活区域: 4334

    • 水源: Public

    • 地块大小: 78 x 148

    • 细分名称: SNELL ISLE SHORES

类似房屋

555 5TH AVENUE NE UNIT 711 placeholder 555 5TH AVENUE NE UNIT 711
26 天
待售
公寓/合作社
$3,600,000
3 贝兹 2 浴室 3,300 平方英尺
555 5TH AVENUE NE UNIT 711
10 BRIGHTWATERS CIRCLE NE placeholder 10 BRIGHTWATERS CIRCLE NE
43 天
待售
房屋
$5,950,000
4 贝兹 4 浴室 4,353 平方英尺
10 BRIGHTWATERS CIRCLE NE
150 2ND AVENUE S UNIT 3004 placeholder 150 2ND AVENUE S UNIT 3004
43 天
待售
公寓/合作社
$3,700,000
3 贝兹 3 浴室 2,651 平方英尺
150 2ND AVENUE S UNIT 3004
288 BEACH DRIVE NE UNIT PH-2A placeholder 288 BEACH DRIVE NE UNIT PH-2A
43 天
待售
顶层公寓
$4,950,000
3 贝兹 2 浴室 5,100 平方英尺
288 BEACH DRIVE NE UNIT PH-2A
150 2ND AVENUE S UNIT 3503 placeholder 150 2ND AVENUE S UNIT 3503
43 天
待售
公寓/合作社
$3,900,000
3 贝兹 3 浴室 2,583 平方英尺
150 2ND AVENUE S UNIT 3503
540 14TH STREET N placeholder 540 14TH STREET N
55 天
待售
多户家庭
$3,650,000
23 贝兹 70,480 平方英尺
540 14TH STREET N
275 1ST AVENUE S UNIT 4204 placeholder 275 1ST AVENUE S UNIT 4204
62 天
待售
公寓/合作社
$5,524,000
3 贝兹 4 浴室 3,157 平方英尺
275 1ST AVENUE S UNIT 4204
275 1ST AVENUE S UNIT 4002 placeholder 275 1ST AVENUE S UNIT 4002
62 天
待售
公寓/合作社
$6,399,000
3 贝兹 4 浴室 3,989 平方英尺
275 1ST AVENUE S UNIT 4002

The multiple listing information is provided by the Stellar MLS from a copyrighted compilation of listings. The compilation of listings and each individual listing are ©2026-present Stellar MLS. All Rights Reserved. The information provided is for consumers' personal, noncommercial use and may not be used for any purpose other than to identify prospective properties consumers may be interested in purchasing. All properties are subject to prior sale or withdrawal. All information provided is deemed reliable but is not guaranteed accurate, and should be independently verified. Listing courtesy of: SOUTHERN ROOTS REALTY, LLC