特性
探索我们的清单
聯繫
告诉我们您的需求

12330 DESTINY DRIVE

联排别墅 待售
$245,000

BTC: 2.82258065

ETH: 83.73205742

2 贝兹
2 浴室
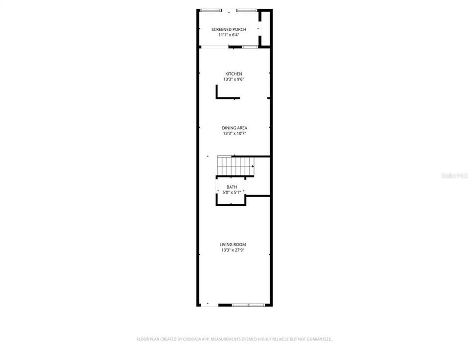
1,537 平方英尺
Est. 预计销售范围: $0 - $0
$0

总览

Welcome home to this beautifully refreshed townhome in the desirable Stoneywood Cove community of Venice. Featuring brand-new carpet, new luxury vinyl plank flooring, and a new hot water heater, this move-in-ready home offers peace of mind and modern comfort from day one. The kitchen is enhanced with an under-sink reverse osmosis system, perfect for clean, great-tasting water. Enjoy a low-maintenance lifestyle with access to the community pool, while being just minutes from shopping, dining, and entertainment at Wellen Park. Plus, you’re only a short drive to Venice’s beautiful Gulf beaches, making it easy to enjoy the Florida coastal lifestyle. Whether you’re a full-time resident, seasonal buyer, or investor, this townhome offers the perfect blend of updates, location, and value. Schedule your private showing today!

位置

佛罗里达 VENICE 34292 联排别墅 待售

详情与特色

类型:
Residential
停车:
没有数据
建造年份:
2007
地段:
0.02 英亩
暖气:
Electric
价格/平方英尺:
$159
冷气:
Central Air
HOA:
$340
更多事实和特点
  • 地板

    • Carpet

    • Luxury Vinyl

    暖气

    • Electric

    冷气

    • Central Air

    设备

    • Dishwasher

    • Disposal

    • Dryer

    • Electric Water Heater

    • Kitchen Reverse Osmosis System

    • Microwave

    • Washer

    其他室内特点

    • Ceiling Fan(s)

    • High Ceilings

    • PrimaryBedroom Upstairs

    • Solid Surface Counters

    • Thermostat

    卧室和浴室

    • 卧室: 2

    • 洗手间: 1

    • 完整的浴室: 2

  • 房屋

    • 等级: Two

    • 外观特征: None

    地段

    • 地段: 0.02 英亩

    其他财产信息

    • 包裹编号: 0756053094

    • 分区: RSF1

  • 类型与风格

    • 财产种类: Residential

    • 属性子类型: Townhouse

  • 公益

    • Cable Connected

    • Electricity Connected

    • Sewer Connected

    • Water Connected

  • 其他财政信息

    • HOA: $340

    • HOA频率: Monthly

    • 年税额: $3,073

  • 来源细节

    • MLS ID: A4676573

    其他详情

    • 建筑材料: Stucco

    • 基金会详情: Slab

    • 洗衣功能: Upper Level

    • 方向面: Northwest

    • 生活区域: 1537

    • 水源: Public

    • 细分名称: STONEYWOOD COVE

类似房屋

433 CERROMAR LANE UNIT 541 placeholder 433 CERROMAR LANE UNIT 541
待售
公寓/合作社
$235,000
2 贝兹 2 浴室 1,002 平方英尺
433 CERROMAR LANE UNIT 541
433 CERROMAR LANE UNIT 440 placeholder 433 CERROMAR LANE UNIT 440
15 天
待售
公寓/合作社
$225,000
2 贝兹 2 浴室 1,002 平方英尺
433 CERROMAR LANE UNIT 440
20392 LAGENTE CIRCLE placeholder 20392 LAGENTE CIRCLE
21 天
待售
联排别墅
$280,000
3 贝兹 2 浴室 1,949 平方英尺
20392 LAGENTE CIRCLE
858 TARTAN DRIVE placeholder 858 TARTAN DRIVE
-$15K (2025/12/16)
待售
房屋
$310,000
2 贝兹 2 浴室 1,886 平方英尺
858 TARTAN DRIVE
166 SOUTHAMPTON PLACE S UNIT 348 placeholder 166 SOUTHAMPTON PLACE S UNIT 348
22 天
待售
房屋
$269,900
2 贝兹 2 浴室 1,743 平方英尺
166 SOUTHAMPTON PLACE S UNIT 348
450 CERROMAR ROAD UNIT 282 placeholder 450 CERROMAR ROAD UNIT 282
27 天
待售
公寓/合作社
$190,000
2 贝兹 2 浴室 1,110 平方英尺
450 CERROMAR ROAD UNIT 282
404 CERROMAR CIRCLE N UNIT 115 placeholder 404 CERROMAR CIRCLE N UNIT 115
29 天
待售
公寓/合作社
$210,000
2 贝兹 2 浴室 1,016 平方英尺
404 CERROMAR CIRCLE N UNIT 115
101 SOUTHAMPTON PLACE N UNIT 248 placeholder 101 SOUTHAMPTON PLACE N UNIT 248
31 天
待售
房屋
$269,700
3 贝兹 2 浴室 1,695 平方英尺
101 SOUTHAMPTON PLACE N UNIT 248

The multiple listing information is provided by the Stellar MLS from a copyrighted compilation of listings. The compilation of listings and each individual listing are ©2026-present Stellar MLS. All Rights Reserved. The information provided is for consumers' personal, noncommercial use and may not be used for any purpose other than to identify prospective properties consumers may be interested in purchasing. All properties are subject to prior sale or withdrawal. All information provided is deemed reliable but is not guaranteed accurate, and should be independently verified. Listing courtesy of: REALTY SOLUTIONS SRQ