特性
探索我们的清单
聯繫
告诉我们您的需求

1610 SANDHILL COURT

联排别墅 待售
$587,110

BTC: 8.71510178

ETH: 305.78645833

24 天
3 贝兹
2 浴室
2,172 平方英尺
Est. 预计销售范围: $0 - $0
$0

总览

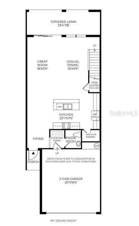
Under Construction. Innisbrook membership INITIATION FEES WAIVED! The luxury resort lifestyle is at your fingertips when you combine Innisbrook and Toll Brothers together! With 63 holes of premier golf (including the Copperhead course, which hosts the PGA Tour's Valspar Tournament), numerous tennis and pickleball courts, 4 restaurants, 6 pools (with Lochness being their pinnacle), Salamander Resort Spa, workout facilities, and Member activities galore, Innisbrook is already a community unlike most others. Combine that with Toll Brothers' reputation of building quality homes, like this stunning 3 bedroom, 2.5 bath, 2-car garage "Sunbird" floorplan, finished with PGT impact windows and a tile roof, and exquisite living has been curated for the most discerning of home buyers. This townhome has ample outdoor living space, with an expansive covered lanai and upstairs balcony. ACT FAST and you still have the opportunity to go to our Design Studio and personalize the interior finishes of this home to your liking. BONUS – Your future home here is not in a flood zone! Don't wait to make this beautiful townhome yours and start enjoying the lifestyle that only the Toll Brothers and Innisbrook Resort combination can offer!

位置

详情与特色

类型:
Residential
停车:
没有数据
建造年份:
2026
地段:
0.05 英亩
暖气:
Heat Pump
价格/平方英尺:
$270
冷气:
Central Air
HOA:
$400
更多事实和特点
  • 地板

    • Carpet

    • Tile

    暖气

    • Heat Pump

    冷气

    • Central Air

    设备

    • Electric Water Heater

    其他室内特点

    • In Wall Pest System

    • Open Floorplan

    • Tray Ceiling(s)

    • Walk-In Closet(s)

    卧室和浴室

    • 卧室: 3

    • 洗手间: 1

    • 完整的浴室: 2

  • 房屋

    • 等级: Two

    • 外观特征: Balcony / Irrigation System / Sidewalk / Sliding Doors

    地段

    • 地段: 0.05 英亩

    其他财产信息

    • 包裹编号: 242715431200000640

  • 类型与风格

    • 财产种类: Residential

    • 属性子类型: Townhouse

  • 公益

    • BB/HS Internet Available

    • Cable Available

    • Electricity Available

    • Sewer Connected

    • Sprinkler Meter

    • Underground Utilities

    • Water Connected

  • 其他财政信息

    • HOA: $400

    • HOA频率: Monthly

    • 年税额: $1,473

  • 来源细节

    • MLS ID: A4675204

    其他详情

    • 建筑材料: Block / HardiPlank Type / Stucco

    • 基金会详情: Slab

    • 洗衣功能: Inside

    • 方向面: South

    • 车库空间: 2

    • 附属车库: 是

    • 车库: 是

    • 生活区域: 2172

    • 水源: Public

    • 细分名称: MONTROSE AT INNISBROOK

类似房屋

765 SADDLEBROOK DRIVE placeholder 765 SADDLEBROOK DRIVE
待售
房屋
$430,000
3 贝兹 2 浴室 1,611 平方英尺
765 SADDLEBROOK DRIVE
305 GRAND BOULEVARD placeholder 305 GRAND BOULEVARD
待售
房屋
$499,900
2 贝兹 2 浴室 1,371 平方英尺
305 GRAND BOULEVARD
4457 GLENBROOK DRIVE placeholder 4457 GLENBROOK DRIVE
1 天
待售
房屋
$585,000
3 贝兹 2 浴室 2,028 平方英尺
4457 GLENBROOK DRIVE
2329 E ORANGEHILL AVENUE placeholder 2329 E ORANGEHILL AVENUE
2 天
待售
房屋
$415,000
3 贝兹 2 浴室 1,424 平方英尺
2329 E ORANGEHILL AVENUE
754 GRAND CYPRESS LANE placeholder 754 GRAND CYPRESS LANE
2 天
待售
联排别墅
$475,000
3 贝兹 2 浴室 2,230 平方英尺
754 GRAND CYPRESS LANE
36750 US HIGHWAY 19 N UNIT 13303 placeholder 36750 US HIGHWAY 19 N UNIT 13303
5 天
待售
公寓/合作社
$419,000
2 贝兹 2 浴室 1,210 平方英尺
36750 US HIGHWAY 19 N UNIT 13303
330 N SPRING BOULEVARD placeholder 330 N SPRING BOULEVARD
7 天
待售
房屋
$749,900
3 贝兹 3 浴室 2,368 平方英尺
330 N SPRING BOULEVARD
2420 OSPREY AVENUE placeholder 2420 OSPREY AVENUE
11 天
待售
房屋
$529,900
3 贝兹 2 浴室 1,519 平方英尺
2420 OSPREY AVENUE

The multiple listing information is provided by the Stellar MLS from a copyrighted compilation of listings. The compilation of listings and each individual listing are ©2026-present Stellar MLS. All Rights Reserved. The information provided is for consumers' personal, noncommercial use and may not be used for any purpose other than to identify prospective properties consumers may be interested in purchasing. All properties are subject to prior sale or withdrawal. All information provided is deemed reliable but is not guaranteed accurate, and should be independently verified. Listing courtesy of: TAMPA TBI REALTY LLC