Недвижимость
Ознакомьтесь с нашими объявлениями
Контакты
Расскажите нам о своих потребностях

17535 NW 2nd Ave # 109, Miami Gardens FL 33169

Коммерческий На продажу
$2,799,000

BTC: 41.54855117

ETH: 1,435.38461538

-$401K (2025/12/01)
51 Дней
0 room(s)
Est. Предполагаемый диапазон продаж: $0 - $0
$0

Обзор

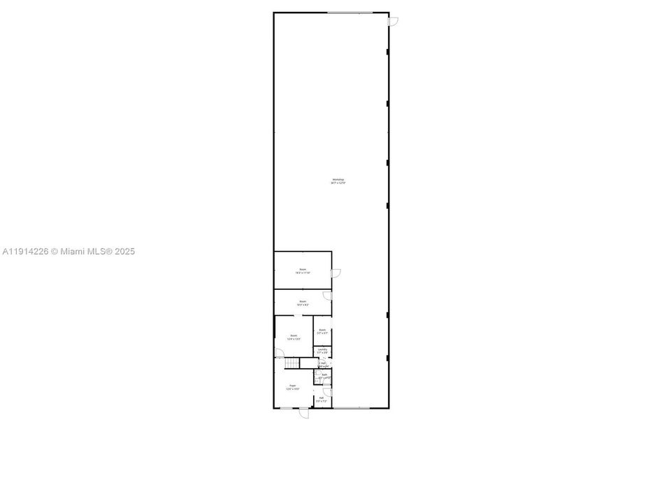
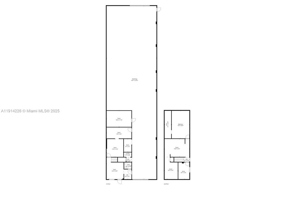
Nice, clean turn-key warehouse. Offering nearly 10,000 SF of versatile industrial space, this rare opportunity features two adjoining 4,900 SF bays within a standalone structure in a boutique industrial park. Constructed with durable twin-T concrete and equipped with 12’ roll-up doors, the building includes a partially open interior wall that allows easy flow between both sections. Located in Golden Glades Commerce Park—an established commercial condominium complex positioned at the crossroads of the Turnpike, I-95, 826, 441, and SR-9—the property benefits from exceptional regional connectivity. The park provides gated, fenced, and well-illuminated grounds with unrestricted 24/7 access.

Локация

Факты и особенности

Тип:
Commercial Sale
Парковка:
Нет данных
Год постройки:
1956
Лот:
Нет данных
Отопление:
Нет данных
Цена/кв.фут:
Нет данных
Охлаждение:
Нет данных
HOA:
Нет данных
Больше фактов и особенностей
  • Другая Информация о Недвижимости

    • Номер Земельного Участка: 34-21-12-045-0080

    • Зонирование: 6100

  • Тип и стиль

    • Тип недвижимости: Commercial Sale

    • Подтип недвижимости: Mixed Use

  • Другая финансовая информация

    • Годовая сумма налога: $22,390

  • Детали источника

    • MLS ID: A11914226

Похожие дома

18735 NE 18th Ave, Miami FL 33179 placeholder 18735 NE 18th Ave, Miami FL 33179
12 Дней
На продажу
Дом
$2,325,000
4 спален 3 ванн 2,849 кв.фт.
18735 NE 18th Ave, Miami FL 33179
18101 NW 19th Ave, Miami Gardens FL 33056 placeholder 18101 NW 19th Ave, Miami Gardens FL 33056
24 Дней
На продажу
Дом
$2,000,000
4 спален 3 ванн 2,957 кв.фт.
18101 NW 19th Ave, Miami Gardens FL 33056
60 NW 161st St, Miami FL 33169 placeholder 60 NW 161st St, Miami FL 33169
34 Дней
На продажу
Коммерческий
$2,155,000
0 room(s)
60 NW 161st St, Miami FL 33169
20215 W Oak Haven Cir, Miami FL 33179 placeholder 20215 W Oak Haven Cir, Miami FL 33179
-$160K (2025/12/26)
На продажу
Дом
$2,199,999
4 спален 5 ванн 4,130 кв.фт.
20215 W Oak Haven Cir, Miami FL 33179
18352 NW 2nd ave, Miami Gardens FL 33169 placeholder 18352 NW 2nd ave, Miami Gardens FL 33169
94 Дней
На продажу
Коммерческий
$2,800,000
0 room(s)
18352 NW 2nd ave, Miami Gardens FL 33169
13242 NW 7th Ave, North Miami FL 33168 placeholder 13242 NW 7th Ave, North Miami FL 33168
115 Дней
На продажу
Коммерческий
$2,500,000
0 room(s)
13242 NW 7th Ave, North Miami FL 33168
1410 NE 163rd St, North Miami Beach FL 33162 placeholder 1410 NE 163rd St, North Miami Beach FL 33162
135 Дней
На продажу
Коммерческий
$2,700,000
0 room(s)
1410 NE 163rd St, North Miami Beach FL 33162
17131 NE 11th Ct, Miami FL 33162 placeholder 17131 NE 11th Ct, Miami FL 33162
+$25K (2025/12/02)
На продажу
Дом
$2,999,999
5 спален 4 ванн 3,742 кв.фт.
17131 NE 11th Ct, Miami FL 33162

The multiple listing information is provided by the Miami Association of REALTORS® from a copyrighted compilation of listings. The compilation of listings and each individual listing are ©2026-present Miami Association of REALTORS®. All Rights Reserved. The information provided is for consumers' personal, noncommercial use and may not be used for any purpose other than to identify prospective properties consumers may be interested in purchasing. All properties are subject to prior sale or withdrawal. All information provided is deemed reliable but is not guaranteed accurate, and should be independently verified. Listing courtesy of: The Brokerage South Florida Real Estate, LLC.