特性
探索我们的清单
聯繫
告诉我们您的需求

300 Collins Ave, Miami Beach FL 33139

顶层公寓 待售
$5,700,000

BTC: 87.69230769

ETH: 3,000.00000000

35 天
3 贝兹
3 浴室
2,699 平方英尺
Est. 预计销售范围: $0 - $0
$0

总览

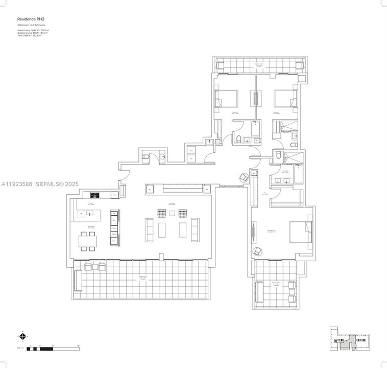
Set in the heart of South of Fifth, 300 Collins offers a modern boutique living experience with only 19 exclusive units, just steps from the beach and top dining spots in the area. Renowned designer Thomas Juul-Hansen has crafted this breathtaking property, selecting premier finishes and fixtures throughout. This exceptional penthouse, with the feel of a house, features high ceilings, a 15ft terrace, a spacious 27ft great room, gas range, white oak flooring, and a generous laundry room. The residence includes three balconies: the largest off the living and kitchen area, a private balcony for the master suite, and a west-facing balcony for the guest rooms. Furniture available for purchase. Income producing Tenants in place.

位置

详情与特色

类型:
Residential
停车:
2 Or More Spaces / Assigned / Covered
建造年份:
2018
地段:
没有数据
暖气:
Central
价格/平方英尺:
$2,112
冷气:
Central Air
HOA:
没有数据
更多事实和特点
  • 地板

    • Wood

    暖气

    • Central

    冷气

    • Central Air

    设备

    • Dishwasher

    • Ice Maker

    • Microwave

    • Gas Range

    • Refrigerator

    • Wall Oven

    • Washer

    其他室内特点

    • First Floor Entry

    • Bar

    • Built-in Features

    • Closet Cabinetry

    • Cooking Island

    • Fire Sprinklers

    • Roman Tub

    • Family Room

    • Utility Room/Laundry

    卧室和浴室

    • 卧室: 3

    • 洗手间: 1

    • 完整的浴室: 3

  • 停车

    • 2 Or More Spaces

    • Assigned

    • Covered

    房屋

    • 外观特征: Open Balcony

    其他财产信息

    • 包裹编号: 02-42-03-377-0180

  • 类型与风格

    • 财产种类: Residential

    • 属性子类型: Condominium

  • 其他财政信息

    • HOA频率: Monthly

    • 年税额: $67,231

  • 来源细节

    • MLS ID: A11923586

    其他详情

    • 建筑材料: CBS Construction

    • 洗衣功能: Utility Room/Laundry

    • 天井和门廊特色: Open Balcony

    • 窗户功能: Blinds / High Impact Windows

    • 方向面: East

    • 建筑风格: Penthouse

    • 车库空间: 2

    • 附属车库: 是

    • 车库: 是

    • 生活区域: 2699

    • 细分名称: 300 COLLINS CONDO

类似房屋

102 24th St # 1115, Miami Beach FL 33139 placeholder 102 24th St # 1115, Miami Beach FL 33139
2 天
待售
公寓/合作社
$4,850,000
2 贝兹 2 浴室 1,687 平方英尺
102 24th St # 1115, Miami Beach FL 33139
100 S Pointe Dr # 2407, Miami Beach FL 33139 placeholder 100 S Pointe Dr # 2407, Miami Beach FL 33139
2 天
待售
公寓/合作社
$6,245,000
2 贝兹 2 浴室 1,757 平方英尺
100 S Pointe Dr # 2407, Miami Beach FL 33139
605 Lincoln Rd # 500, Miami Beach FL 33139 placeholder 605 Lincoln Rd # 500, Miami Beach FL 33139
2 天
待售
商业的
$5,900,000
0 room(s)
605 Lincoln Rd # 500, Miami Beach FL 33139
3141 N Bay Rd, Miami Beach FL 33140 placeholder 3141 N Bay Rd, Miami Beach FL 33140
9 天
待售
房屋
$4,500,000
4 贝兹 3 浴室 2,152 平方英尺
3141 N Bay Rd, Miami Beach FL 33140
1500 Ocean Dr # 1201, Miami Beach FL 33139 placeholder 1500 Ocean Dr # 1201, Miami Beach FL 33139
14 天
待售
公寓/合作社
$5,000,000
3 贝兹 3 浴室 2,320 平方英尺
1500 Ocean Dr # 1201, Miami Beach FL 33139
2124 Fisher Island Dr # 2124, Miami Beach FL 33109 placeholder 2124 Fisher Island Dr # 2124, Miami Beach FL 33109
20 天
待售
公寓/合作社
$4,850,000
3 贝兹 3 浴室 2,744 平方英尺
2124 Fisher Island Dr # 2124, Miami Beach FL 33109
2729 N Bay Rd, Miami Beach FL 33140 placeholder 2729 N Bay Rd, Miami Beach FL 33140
22 天
待售
房屋
$5,495,000
5 贝兹 6 浴室 3,565 平方英尺
2729 N Bay Rd, Miami Beach FL 33140
2245 Fisher Island Dr # 3405, Miami Beach FL 33109 placeholder 2245 Fisher Island Dr # 3405, Miami Beach FL 33109
22 天
待售
公寓/合作社
$4,500,000
2 贝兹 2 浴室 1,912 平方英尺
2245 Fisher Island Dr # 3405, Miami Beach FL 33109

The multiple listing information is provided by the Miami Association of REALTORS® from a copyrighted compilation of listings. The compilation of listings and each individual listing are ©2026-present Miami Association of REALTORS®. All Rights Reserved. The information provided is for consumers' personal, noncommercial use and may not be used for any purpose other than to identify prospective properties consumers may be interested in purchasing. All properties are subject to prior sale or withdrawal. All information provided is deemed reliable but is not guaranteed accurate, and should be independently verified. Listing courtesy of: One Sotheby's International Realty