特性
探索我们的清单
聯繫
告诉我们您的需求

48 AUDUBON LANE

房屋 待售
$1,390,000

BTC: 20.63325692

ETH: 712.82051282

264 天
7 贝兹
4 浴室
6,258 平方英尺
Est. 预计销售范围: $0 - $0
$0

总览

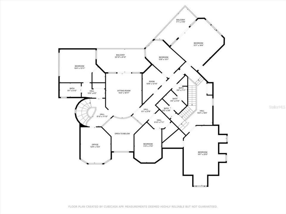
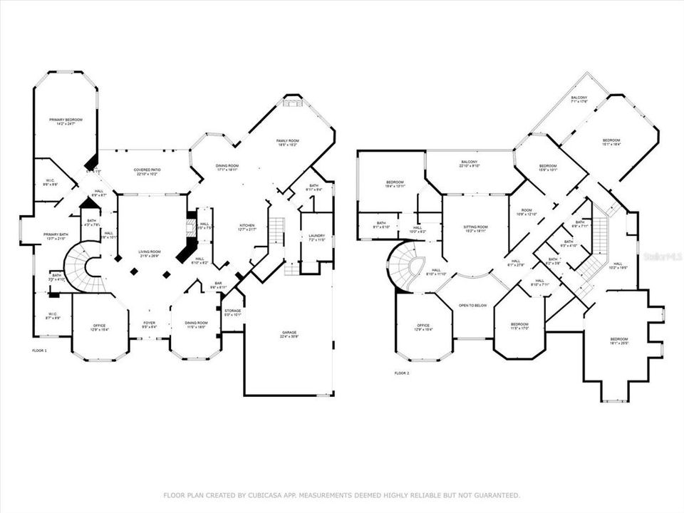
Tucked away in the prestigious Sugar Mill Plantation, this extraordinary 7 Bedroom, 4 1/2 Bath French-inspired estate is a timeless masterpiece that blends privacy, elegance, and enduring value. Encompassing over 6,000 square feet of meticulously crafted living space and graciously positioned along more than 200 acres of protected state preserve, this custom-built home offers an unmatched living experience. From the moment you arrive, the home's architectural grandeur and attention to detail captivate. Inside, exquisite craftsmanship is showcased through crown molding, stately columns, custom baseboards, and artisanal touches throughout. Two elegant gas fireplaces create cozy focal points, while 10-foot ceilings and 8-foot doors on the main level enhance the sense of space and refinement. The great room features one of the two gas fireplaces for those chilling evenings and also is equipped with surround sound. The chef’s kitchen is a dream, featuring a double oven, convection microwave, large walk-in pantry, center island with prep sink, butler’s pantry with additional sink, and a built-in wine cooler—perfect for entertaining. A beautiful formal dining room with a bay window sets the stage for memorable gatherings. Retreat to the luxurious downstairs master suite, complete with a tranquil view of the state park through a large bay window. The spa-like master bath includes a walk-in shower, Jacuzzi tub, dual sinks, marble countertops, vanity area, and two spacious walk-in closets. Ascend the elegant circular staircase to find additional bedrooms, each thoughtfully designed—including two located within the home’s signature towers, boasting expansive bay windows. A large open loft with balcony, bonus/game room with surround sound add to the home's versatility. Practical features such as two A/C units, two water heaters, an intercom system, built-in, walk-in closets in every bedroom, various closets throughout the home for additional storage, a laundry chute for added convenience, and a safe room–designed laundry area ensure both comfort and peace of mind. Every corner reveals thoughtful design, from the intricate ledges and nooks to the seamless flow between living areas. This one-of-a-kind estate must be seen to be truly appreciated—a rare offering that combines timeless style, exceptional privacy, and enduring quality in one of the area’s most sought-after neighborhoods.

位置

佛罗里达 FLAGLER BEACH 32136 房屋 待售

详情与特色

类型:
Residential
停车:
没有数据
建造年份:
2002
地段:
0.55 英亩
暖气:
Central
价格/平方英尺:
$222
冷气:
Central Air
HOA:
$350
更多事实和特点
  • 地板

    • Carpet

    • Engineered Hardwood

    • Tile

    暖气

    • Central

    冷气

    • Central Air

    设备

    • Convection Oven

    • Cooktop

    • Dishwasher

    • Disposal

    • Microwave

    • Range Hood

    • Refrigerator

    • Wine Refrigerator

    其他室内特点

    • Built-in Features

    • Ceiling Fan(s)

    • Chair Rail

    • Crown Molding

    • High Ceilings

    • Kitchen/Family Room Combo

    • L Dining

    • Primary Bedroom Main Floor

    • Split Bedroom

    • Stone Counters

    • Tray Ceiling(s)

    • Walk-In Closet(s)

    卧室和浴室

    • 卧室: 7

    • 洗手间: 1

    • 完整的浴室: 4

  • 房屋

    • 等级: Two

    • 外观特征: Balcony / French Doors / Irrigation System / Private Mailbox / Sidewalk / Sliding Doors

    地段

    • 地段: 0.55 英亩

    其他财产信息

    • 包裹编号: 3712315627000000630

    • 分区: PUD

  • 类型与风格

    • 财产种类: Residential

    • 属性子类型: Single Family Residence

  • 公益

    • Cable Available

    • Electricity Connected

    • Natural Gas Connected

    • Sprinkler Meter

    • Sprinkler Well

    • Underground Utilities

    • Water Connected

  • 其他财政信息

    • HOA: $350

    • HOA频率: Semi-Annually

    • 年税额: $11,496

  • 来源细节

    • MLS ID: FC309067

    其他详情

    • 建筑材料: Block / Concrete / Stucco

    • 基金会详情: Slab

    • 壁炉功能: Family Room / Gas / Living Room

    • 洗衣功能: Inside

    • 天井和门廊特色: Covered / Rear Porch

    • 方向面: Southwest

    • 建筑风格: French Provincial

    • 壁炉: 是

    • 车库空间: 3

    • 附属车库: 是

    • 车库: 是

    • 生活区域: 6258

    • 水源: Public

    • 细分名称: SUGAR MILL PLANTATION

类似房屋

2035 S FLAGLER AVENUE placeholder 2035 S FLAGLER AVENUE
-$110K (2026/01/02)
待售
房屋
$1,189,000
3 贝兹 2 浴室 3,444 平方英尺
2035 S FLAGLER AVENUE
5011 JOHN ANDERSON HIGHWAY placeholder 5011 JOHN ANDERSON HIGHWAY
20 天
待售
房屋
$1,050,000
4 贝兹 3 浴室 2,613 平方英尺
5011 JOHN ANDERSON HIGHWAY
441 STIRLING BRIDGE DRIVE placeholder 441 STIRLING BRIDGE DRIVE
23 天
待售
房屋
$1,252,405
3 贝兹 3 浴室 2,665 平方英尺
441 STIRLING BRIDGE DRIVE
443 STIRLING BRIDGE DRIVE placeholder 443 STIRLING BRIDGE DRIVE
23 天
待售
房屋
$1,301,535
4 贝兹 3 浴室 2,588 平方英尺
443 STIRLING BRIDGE DRIVE
2549 PALM AVENUE placeholder 2549 PALM AVENUE
+$50K (2025/12/12)
待售
房屋
$1,350,000
3 贝兹 3 浴室 2,673 平方英尺
2549 PALM AVENUE
2 HUMMING BIRD CIRCLE placeholder 2 HUMMING BIRD CIRCLE
39 天
待售
房屋
$995,000
4 贝兹 3 浴室 3,250 平方英尺
2 HUMMING BIRD CIRCLE
264 STIRLING BRIDGE DRIVE placeholder 264 STIRLING BRIDGE DRIVE
44 天
待售
房屋
$1,595,000
3 贝兹 3 浴室 3,180 平方英尺
264 STIRLING BRIDGE DRIVE
608 SHEARWOOD DRIVE placeholder 608 SHEARWOOD DRIVE
45 天
待售
房屋
$999,000
3 贝兹 3 浴室 2,093 平方英尺
608 SHEARWOOD DRIVE

The multiple listing information is provided by the Stellar MLS from a copyrighted compilation of listings. The compilation of listings and each individual listing are ©2026-present Stellar MLS. All Rights Reserved. The information provided is for consumers' personal, noncommercial use and may not be used for any purpose other than to identify prospective properties consumers may be interested in purchasing. All properties are subject to prior sale or withdrawal. All information provided is deemed reliable but is not guaranteed accurate, and should be independently verified. Listing courtesy of: TRADEMARK REALTY GROUP LLC