特性
探索我们的清单
聯繫
告诉我们您的需求

9790 SW 62nd St, Miami FL 33173

房屋 待售
$5,789,000

BTC: 192.96666667

ETH: 2,894.50000000

6 贝兹
6 浴室
6,566 平方英尺
Est. 预计销售范围: $0 - $0
$0

总览

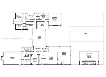
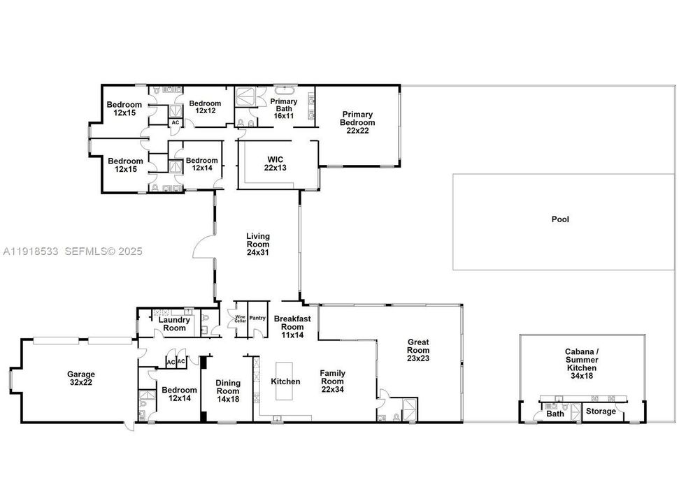
Experience modern luxury in this exceptional 1-story estate offering 6 bedrooms, 6.5 baths, and 8,067 sq ft of living space on 1.25 lush acres. A 12-ft pivot glass door and soaring 15 ft ceilings set a grand tone for refined interiors with Italian porcelain floors. The chef’s kitchen includes Wolf and Sub-Zero appliances, custom cabinets, quartzite counters, a large island, and a cable wine display. A glass-wrapped sunroom opens to the summer kitchen and patio. Enjoy a 70-ft knife-edge pool, 10×14 overflow spa, fire-pit lounge, half basketball court, and 3-car garage.

位置

佛罗里达 迈阿密 33173 房屋 待售

详情与特色

类型:
Residential
停车:
Driveway / Limited # Of Vehicle / No Trucks/Trailers
建造年份:
2024
地段:
54450 平方英尺
暖气:
Central / Electric
价格/平方英尺:
$882
冷气:
Central Air / Electric
HOA:
没有数据
更多事实和特点
  • 地板

    • Ceramic Floor

    暖气

    • Central

    • Electric

    冷气

    • Central Air

    • Electric

    设备

    • Dishwasher

    • Disposal

    • Microwave

    • Electric Range

    • Refrigerator

    • Washer

    其他室内特点

    • First Floor Entry

    • Closet Cabinetry

    • Custom Mirrors

    • Entrance Foyer

    • Pantry

    • Walk-In Closet(s)

    • Great Room

    • Utility Room/Laundry

    卧室和浴室

    • 卧室: 6

    • 洗手间: 1

    • 完整的浴室: 6

  • 停车

    • Driveway

    • Limited # Of Vehicle

    • No Trucks/Trailers

    房屋

    • 外观特征: Barbeque / Built-In Grill / Lighting / Other

    地段

    • 地段: 54450 平方英尺

    其他财产信息

    • 包裹编号: 30-40-29-001-0190

    • 分区: 2300

  • 类型与风格

    • 财产种类: Residential

    • 属性子类型: Single Family Residence

  • 其他财政信息

    • 年税额: $84,096

  • 来源细节

    • MLS ID: A11918533

    其他详情

    • 洗衣功能: Utility Room/Laundry

    • 地段特征: 1 To Less Than 2 Acre Lot

    • 天井和门廊特色: Patio

    • 泳池特色: In Ground

    • 窗户功能: Casement / Picture Window

    • 方向面: North

    • 其他结构: Extra Building/Shed

    • 建筑风格: Detached / One Story

    • 车库空间: 3

    • 附属车库: 是

    • 车库: 是

    • 生活区域: 6566

    • 水源: Municipal Water

    • 细分名称: SUBDIVISION OF

类似房屋

6950 SW 97th Ave, Miami FL 33173 placeholder 6950 SW 97th Ave, Miami FL 33173
25 天
待售
房屋
$5,095,000
5 贝兹 5 浴室 4,696 平方英尺
6950 SW 97th Ave, Miami FL 33173
10506 SW 89 Place, Miami FL 33176 placeholder 10506 SW 89 Place, Miami FL 33176
55 天
待售
房屋
$5,500,000
6 贝兹 5 浴室 6,112 平方英尺
10506 SW 89 Place, Miami FL 33176
12175 SW 45th St, Miami FL 33175 placeholder 12175 SW 45th St, Miami FL 33175
58 天
待售
房屋
$7,500,000
8 贝兹 8 浴室 6,665 平方英尺
12175 SW 45th St, Miami FL 33175
7840 SW 98th St, Miami FL 33156 placeholder 7840 SW 98th St, Miami FL 33156
85 天
待售
房屋
$4,650,000
5 贝兹 6 浴室 4,618 平方英尺
7840 SW 98th St, Miami FL 33156
9855 S Dixie Hwy, Pinecrest FL 33156 placeholder 9855 S Dixie Hwy, Pinecrest FL 33156
-$2M (2025/11/29)
待售
商业的
$7,000,000
0 room(s)
9855 S Dixie Hwy, Pinecrest FL 33156
9600 SW 66th St, Miami FL 33173 placeholder 9600 SW 66th St, Miami FL 33173
122 天
待售
房屋
$6,300,000
7 贝兹 6 浴室 4,408 平方英尺
9600 SW 66th St, Miami FL 33173
0 7245 SW 104th St, Pinecrest FL 33156 placeholder 0 7245 SW 104th St, Pinecrest FL 33156
-$876K (2025/11/12)
待售
地段/土地
$5,499,000
0 room(s)
0 7245 SW 104th St, Pinecrest FL 33156
16700 SW 52/56 ST, Miami FL 33185 placeholder 16700 SW 52/56 ST, Miami FL 33185
135 天
待售
商业的
$5,000,000
0 room(s)
16700 SW 52/56 ST, Miami FL 33185

The multiple listing information is provided by the Miami Association of REALTORS® from a copyrighted compilation of listings. The compilation of listings and each individual listing are ©2025-present Miami Association of REALTORS®. All Rights Reserved. The information provided is for consumers' personal, noncommercial use and may not be used for any purpose other than to identify prospective properties consumers may be interested in purchasing. All properties are subject to prior sale or withdrawal. All information provided is deemed reliable but is not guaranteed accurate, and should be independently verified. Listing courtesy of: Coldwell Banker Realty