特性
探索我们的清单
聯繫
告诉我们您的需求

9940 BLACK BEAR LANE

房屋 待售
$2,050,000

BTC: 68.33333333

ETH: 1,025.00000000

+$200K (2025/11/11)
203 天
4 贝兹
4 浴室
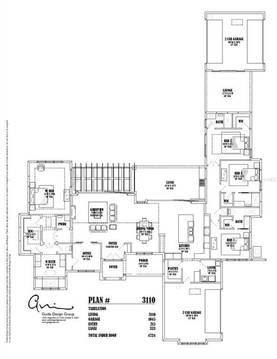
3,110 平方英尺
Est. 预计销售范围: $0 - $0
$0

总览

Pre-Construction. To be built. This Custom Single-Story Modern Farmhouse by Lionshead Homes is a showstopper! Set on a serene 5-acre private oasis. Plenty of space for farm animals or just enjoy the open space and tranquil surroundings. Lionshead Homes has recently built custom homes near this property. So Buyers may view a recently completed home to get an idea of fit and finish and our quality craftmanship. Located in the Avalon Rural Settlement, you'll enjoy the country lifestyle without sacrificing proximity to shopping, entertainment and the suburban lifestyle of Hamlin and Winter Garden. Call for more information or to schedule a viewing appointment.

位置

佛罗里达 WINTER GARDEN 34787 房屋 待售

详情与特色

类型:
Residential
停车:
没有数据
建造年份:
2025
地段:
5.00 英亩
暖气:
Heat Pump
价格/平方英尺:
$659
冷气:
Central Air
HOA:
没有数据
更多事实和特点
  • 地板

    • Laminate

    • Porcelain Tile

    暖气

    • Heat Pump

    冷气

    • Central Air

    设备

    • Built-In Oven

    • Cooktop

    • Dishwasher

    • Disposal

    • Dryer

    • Microwave

    • Refrigerator

    • Tankless Water Heater

    • Washer

    其他室内特点

    • Coffered Ceiling(s)

    • Eating Space In Kitchen

    • High Ceilings

    • Living Room/Dining Room Combo

    • Open Floorplan

    • Primary Bedroom Main Floor

    • Stone Counters

    • Thermostat

    • Tray Ceiling(s)

    • Vaulted Ceiling(s)

    • Walk-In Closet(s)

    卧室和浴室

    • 卧室: 4

    • 洗手间: 1

    • 完整的浴室: 4

  • 房屋

    • 等级: One

    • 外观特征: Irrigation System

    地段

    • 地段: 5.00 英亩

    其他财产信息

    • 包裹编号: 132326000100000102

    • 分区: A

  • 类型与风格

    • 财产种类: Residential

    • 属性子类型: Single Family Residence

  • 公益

    • Cable Available

    • Electricity Available

    • Phone Available

  • 其他财政信息

    • 年税额: $4,423

  • 来源细节

    • MLS ID: O6309917

    其他详情

    • 建筑材料: Block

    • 基金会详情: Slab

    • 壁炉功能: Family Room / Gas

    • 洗衣功能: Laundry Room

    • 地段特征: Zoned for Horses

    • 方向面: West

    • 壁炉: 是

    • 车库空间: 4

    • 附属车库: 是

    • 车库: 是

    • 生活区域: 3110

    • 水源: Well Required

    • 地块大小: 661 x 338

    • 细分名称: ACREAGE & UNREC

类似房屋

11714 FLYNN COURT placeholder 11714 FLYNN COURT
15 天
待售
房屋
$1,550,000
4 贝兹 3 浴室 4,370 平方英尺
11714 FLYNN COURT
16110 JOHNS LAKE OVERLOOK DRIVE placeholder 16110 JOHNS LAKE OVERLOOK DRIVE
20 天
待售
房屋
$2,420,000
5 贝兹 4 浴室 4,959 平方英尺
16110 JOHNS LAKE OVERLOOK DRIVE
16689 BROADWATER AVENUE placeholder 16689 BROADWATER AVENUE
28 天
待售
房屋
$2,249,000
7 贝兹 6 浴室 5,283 平方英尺
16689 BROADWATER AVENUE
17261 HEARTWOOD LOOP placeholder 17261 HEARTWOOD LOOP
-$100K (2025/11/12)
待售
房屋
$2,079,000
5 贝兹 5 浴室 6,400 平方英尺
17261 HEARTWOOD LOOP
17936 W PHIL C PETERS RD ROAD placeholder 17936 W PHIL C PETERS RD ROAD
-$150K (2025/11/14)
待售
房屋
$1,600,000
3 贝兹 3 浴室 2,146 平方英尺
17936 W PHIL C PETERS RD ROAD
16548 RAVEN ROCK PLACE placeholder 16548 RAVEN ROCK PLACE
78 天
待售
房屋
$1,699,900
5 贝兹 4 浴室 4,263 平方英尺
16548 RAVEN ROCK PLACE
15986 JOHNS LAKE OVERLOOK DRIVE placeholder 15986 JOHNS LAKE OVERLOOK DRIVE
-$100K (2025/11/13)
待售
房屋
$2,099,999
5 贝兹 4 浴室 4,498 平方英尺
15986 JOHNS LAKE OVERLOOK DRIVE
7766 MINUTEMEN LOOP placeholder 7766 MINUTEMEN LOOP
138 天
待售
房屋
$1,824,888
5 贝兹 4 浴室 4,716 平方英尺
7766 MINUTEMEN LOOP

The multiple listing information is provided by the Stellar MLS from a copyrighted compilation of listings. The compilation of listings and each individual listing are ©2025-present Stellar MLS. All Rights Reserved. The information provided is for consumers' personal, noncommercial use and may not be used for any purpose other than to identify prospective properties consumers may be interested in purchasing. All properties are subject to prior sale or withdrawal. All information provided is deemed reliable but is not guaranteed accurate, and should be independently verified. Listing courtesy of: HAMLIN REALTY