特性
探索我们的清单
聯繫
告诉我们您的需求

2255 N BEACH ROAD UNIT 23

公寓/合作社 待售
$525,000

BTC: 5.97739452

ETH: 262.50000000

4 天
滨水区
2 贝兹
2 浴室
949 平方英尺
Est. 预计销售范围: $0 - $0
$0

总览

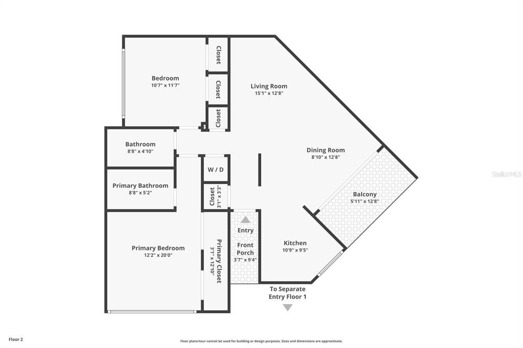
Experience true island living on Manasota Key. This beautifully updated 2-bedroom, 2-bath coastal condo offers the rarest combination on the key: modern upgrades, exceptional storage, abundant parking, and truly effortless walkability. Just steps to public beach access and a short stroll to great local dining, you’re in the heart of authentic Old Florida living, where sandy sunsets, warm breezes, and a laid-back island lifestyle define every day. Inside, the open-concept layout is designed for easy coastal living. The kitchen was fully updated in 2022 with sleek quartz countertops, upgraded cabinetry, new appliances, and breakfast bar, delivering both style and peace of mind. Granite countertops elevate both bathrooms, while plank tile flooring flows seamlessly through the home for a fresh, coastal-inspired feel. Additional thoughtful touches include a finished pantry and an elevator shaft already in place for future installation. A standout feature of this property is the expansive 500+ sq ft flex space, complete with an electric fireplace. The possibilities are endless, perfect for a home office, fitness room, entertainment lounge, art studio, man cave, or hobby workshop. This kind of bonus space is unheard of on Manasota Key and sets this residence apart from anything else on the market. Another major advantage: this condo has had zero hurricane damage, providing long-term confidence for both full-time and seasonal owners. Nature lovers will appreciate being minutes from Stump Pass State Park, known for its scenic trails, wildlife, kayaking, and some of the best shelling and shark tooth hunting on the Gulf. Just over the bridge, vibrant Dearborn Street offers year-round entertainment with local shops, restaurants, art events, festivals, classic car nights, and one of Florida’s largest farmers' markets. The HOA is financially strong and fully funded. Fees include pest control, lawn care, pool service, roofing, driveway maintenance, mangroves, docks, and management. The dock contract is fully signed and funded, adding even more value to this coastal lifestyle. Whether you're seeking a personal retreat, a seasonal getaway, or an investment-friendly property, this Manasota Key condo delivers the ideal blend of premier location, modern upgrades, and island charm. With its rare parking and storage, high-end finishes, spacious, flexible layout, and unbeatable proximity to the beach, this is truly a one-of-a-kind opportunity.

位置

详情与特色

类型:
Residential
停车:
Common / Driveway / Garage Door Opener
建造年份:
2000
地段:
0.03 英亩
暖气:
Central
价格/平方英尺:
$553
冷气:
Central Air
HOA:
$4,053
更多事实和特点
  • 地板

    • Carpet

    • Tile

    暖气

    • Central

    冷气

    • Central Air

    设备

    • Convection Oven

    • Dishwasher

    • Disposal

    • Dryer

    • Electric Water Heater

    • Microwave

    • Range

    • Refrigerator

    • Washer

    • Wine Refrigerator

    其他室内特点

    • Ceiling Fan(s)

    • High Ceilings

    • Living Room/Dining Room Combo

    • Open Floorplan

    • Solid Surface Counters

    • Solid Wood Cabinets

    • Split Bedroom

    • Stone Counters

    • Thermostat

    • Window Treatments

    卧室和浴室

    • 卧室: 2

    • 完整的浴室: 2

  • 停车

    • Common

    • Driveway

    • Garage Door Opener

    房屋

    • 等级: Two

    • 外观特征: Balcony / Lighting / Outdoor Shower / Private Entrance / Sliding Doors

    地段

    • 地段: 0.03 英亩

    其他财产信息

    • 包裹编号: 411912651014

    • 分区: MCT

  • 类型与风格

    • 财产种类: Residential

    • 属性子类型: Condominium

  • 公益

    • BB/HS Internet Available

    • Cable Available

    • Electricity Connected

    • Phone Available

    • Public

    • Sewer Connected

    • Water Connected

  • 其他财政信息

    • HOA: $4,053

    • HOA频率: Quarterly

    • 年税额: $4,171

  • 来源细节

    • MLS ID: D6145132

    其他详情

    • 建筑材料: Block / Stucco

    • 基金会详情: Block

    • 壁炉功能: Electric

    • 洗衣功能: Inside / Laundry Closet

    • 地段特征: Cul-De-Sac / Flood Insurance Required / In County / Landscaped / Street Dead-End

    • 天井和门廊特色: Covered / Front Porch / Patio / Rear Porch / Side Porch

    • 泳池特色: Gunite / Heated / In Ground / Lighting / Outside Bath Access

    • 方向面: Northeast

    • 建筑风格: Key West

    • 滨水区: 是

    • 壁炉: 是

    • 水体名称: LEMON BAY

    • 车库空间: 1

    • 附属车库: 是

    • 车库: 是

    • 生活区域: 949

    • 水源: Public

    • 细分名称: LIVE OAK LANDINGS PH 02

类似房屋

285 S OXFORD DRIVE placeholder 285 S OXFORD DRIVE
1 天
待售
房屋
$369,900
2 贝兹 1 浴室 1,020 平方英尺
285 S OXFORD DRIVE
5031 N BEACH ROAD UNIT 120 placeholder 5031 N BEACH ROAD UNIT 120
6 天
待售
公寓/合作社
$424,900
2 贝兹 2 浴室 1,046 平方英尺
5031 N BEACH ROAD UNIT 120
1410 DEER CREEK DRIVE placeholder 1410 DEER CREEK DRIVE
7 天
待售
房屋
$395,000
2 贝兹 1 浴室 1,363 平方英尺
1410 DEER CREEK DRIVE
2955 N BEACH ROAD UNIT A411 placeholder 2955 N BEACH ROAD UNIT A411
8 天
待售
公寓/合作社
$589,900
2 贝兹 2 浴室 1,161 平方英尺
2955 N BEACH ROAD UNIT A411
1591 BEACH ROAD UNIT 307 placeholder 1591 BEACH ROAD UNIT 307
11 天
待售
公寓/合作社
$425,000
2 贝兹 2 浴室 1,222 平方英尺
1591 BEACH ROAD UNIT 307
1375 BEACH ROAD UNIT 211 placeholder 1375 BEACH ROAD UNIT 211
13 天
待售
公寓/合作社
$625,000
3 贝兹 2 浴室 1,686 平方英尺
1375 BEACH ROAD UNIT 211
2955 N BEACH ROAD UNIT D125 placeholder 2955 N BEACH ROAD UNIT D125
13 天
待售
公寓/合作社
$669,000
2 贝兹 2 浴室 1,185 平方英尺
2955 N BEACH ROAD UNIT D125
1081 HUMBOLDT STREET placeholder 1081 HUMBOLDT STREET
14 天
待售
房屋
$599,000
3 贝兹 2 浴室 1,838 平方英尺
1081 HUMBOLDT STREET

The multiple listing information is provided by the Stellar MLS from a copyrighted compilation of listings. The compilation of listings and each individual listing are ©2025-present Stellar MLS. All Rights Reserved. The information provided is for consumers' personal, noncommercial use and may not be used for any purpose other than to identify prospective properties consumers may be interested in purchasing. All properties are subject to prior sale or withdrawal. All information provided is deemed reliable but is not guaranteed accurate, and should be independently verified. Listing courtesy of: PARADISE EXCLUSIVE INC