特性
探索我们的清单
聯繫
告诉我们您的需求

2955 N BEACH ROAD UNIT D123

公寓/合作社 最近售出
$799,900

BTC: 11.76323529

ETH: 7,999.00000000

发售日期: 2026-02-12
42 天
滨水区
3 贝兹
3 浴室
1,715 平方英尺
Est. 预计销售范围: $0 - $0
$0

总览

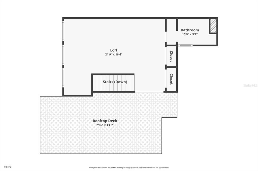
One or more photo(s) has been virtually staged. One picture of the large outdoor upper deck is Virtually Staged. DONT MISS THIS GORGEOUS 3/3 WATER FRONT CONDO BEING SOLD FURNISHED***Located in the Desirable Tamarind Gulf & Bay Complex on Manasota Key, FL. Boasting High Elevation this condo has stayed high and dry with no water intrusion from the 2024 hurricanes. Unit D123 offers comfort, style, and breathtaking waterfront views of Lemon Bay. This second-floor residence provides over 1,700 square feet of living space, ensuring ample room for relaxation and entertainment. The Chef's Kitchen is a culinary enthusiast's dream, featuring abundant counter and cabinet space, updated GE appliances, quartz countertops, coffee bar and laminate flooring. This home features a spacious layout with two bedrooms and two full bathrooms on the main floor, complemented by the upper-level 3rd bedroom or flex room with an additional full bath. The flex room provides expansive bay views, serves as an ideal office, media room, or guest suite. Step out onto the 27' x 15' open-air deck, offering 465 square feet of space to unwind while overlooking the boat slips and the peaceful waters of Lemon Bay. Whether it's sipping morning coffee or enjoying an evening gathering, this deck enhances your experience. You will find the beauty of sunrises here rivals that of sunsets. Amenities Include: Private Beach Access. Enjoy 400 feet of pristine Gulf of Mexico shoreline, perfect for shelling, shark tooth hunting, or simply basking in the sun. Boating Facilities: The complex caters to boating enthusiasts with 26 first-come, first-served boat slips equipped with water and electric hookups, a private boat ramp, and a fish cleaning station. Recreational Facilities: A heated pool, clubhouse, kayak racks, outdoor grills, and covered parking are among the amenities that enhance the Tamarind lifestyle. The community is also pet-friendly, welcoming two pets without weight restrictions. Take the opportunity to embrace a lifestyle that combines the peaceful beachside with boating convenience. Manasota Key is a tranquil barrier island approximately 11 miles long and a quarter mile wide at its widest point. The island has only a single two-lane road, free from traffic lights and high-rise developments, preserving the charm of "Old Florida." Residents are minutes away from local shops, enjoy GREAT RESTAURANTS with amazing fresh SEAFOOD, Manasota Key's awesome gift shops, nightlife, boating, jet skiing fishing, endless aquatic activities, biking, kayaking, stand up paddleboards, beach yoga, shark's teeth hunting, finding beautiful shells, dolphin, manatee, and bird watching. Also close to several golf courses. We can’t forget Dearborn Street in Downtown Englewood. It is a vibrant thoroughfare that captures the essence of Old Florida charm. Reaching several blocks, it is lined with an array of independent boutiques, art galleries, gift shops, coffee houses, and restaurants, making it a prime destination for both locals and visitors. Don't miss the opportunity to experience this exceptional property firsthand. CALL TODAY FOR YOUR PRIVATE SHOWING.

位置

详情与特色

类型:
Residential
停车:
Assigned / Covered
建造年份:
1982
地段:
0.20 英亩
暖气:
Electric
价格/平方英尺:
$466
冷气:
Central Air
HOA:
$3,775
更多事实和特点
  • 地板

    • Laminate

    暖气

    • Electric

    冷气

    • Central Air

    设备

    • Dishwasher

    • Disposal

    • Electric Water Heater

    • Range

    • Range Hood

    • Refrigerator

    其他室内特点

    • Ceiling Fan(s)

    • Living Room/Dining Room Combo

    • Open Floorplan

    • Primary Bedroom Main Floor

    • Solid Surface Counters

    • Solid Wood Cabinets

    • Split Bedroom

    • Stone Counters

    • Thermostat

    • Walk-In Closet(s)

    • Window Treatments

    卧室和浴室

    • 卧室: 3

    • 完整的浴室: 3

  • 停车

    • Assigned

    • Covered

    房屋

    • 等级: Two

    • 外观特征: Lighting / Outdoor Grill / Sidewalk / Sliding Doors / Storage

    地段

    • 地段: 0.20 英亩

    其他财产信息

    • 包裹编号: 411901702060

    • 分区: MMF7.5

  • 类型与风格

    • 财产种类: Residential

    • 属性子类型: Condominium

  • 公益

    • Cable Connected

    • Electricity Connected

    • Public

    • Sewer Connected

    • Sprinkler Well

    • Water Connected

  • 其他财政信息

    • HOA: $3,775

    • HOA频率: Quarterly

    • 年税额: $8,811

  • 来源细节

    • MLS ID: D6144860

    其他详情

    • 建筑材料: Block / Stucco

    • 基金会详情: Stem Wall

    • 洗衣功能: Electric Dryer Hookup / Laundry Closet / Washer Hookup

    • 地段特征: Landscaped

    • 天井和门廊特色: Deck

    • 窗户功能: Blinds / Storm Window(s)

    • 方向面: East

    • 建筑风格: Coastal

    • 滨水区: 是

    • 水体名称: LEMON BAY & GULF OF MEXICO

    • 生活区域: 1715

    • 水源: Public

    • 细分名称: TAMARIND GULF & BAY BLDG D-1

类似房屋

180 N INDIANA AVENUE placeholder 180 N INDIANA AVENUE
最近售出
商业的
$565,000
0 room(s) 6,037 平方英尺
180 N INDIANA AVENUE
130 SAND DOLLAR LANE placeholder 130 SAND DOLLAR LANE
最近售出
房屋
$599,000
3 贝兹 2 浴室 1,418 平方英尺
130 SAND DOLLAR LANE
1921 MISSISSIPPI AVENUE placeholder 1921 MISSISSIPPI AVENUE
最近售出
房屋
$700,000
3 贝兹 3 浴室 1,618 平方英尺
1921 MISSISSIPPI AVENUE
95 W DEARBORN STREET placeholder 95 W DEARBORN STREET
最近售出
地段/土地
$650,000
0 room(s)
95 W DEARBORN STREET
2950 N BEACH ROAD UNIT B323 placeholder 2950 N BEACH ROAD UNIT B323
最近售出
公寓/合作社
$750,000
2 贝兹 3 浴室 1,485 平方英尺
2950 N BEACH ROAD UNIT B323
1125 SHORE VIEW DRIVE UNIT A & B placeholder 1125 SHORE VIEW DRIVE UNIT A & B
最近售出
多户家庭
$589,900
0 room(s) 1,430 平方英尺
1125 SHORE VIEW DRIVE UNIT A & B
1420 LEMON BAY DRIVE DRIVE placeholder 1420 LEMON BAY DRIVE DRIVE
最近售出
房屋
$575,000
2 贝兹 2 浴室 2,197 平方英尺
1420 LEMON BAY DRIVE DRIVE
2380 N BEACH ROAD UNIT 202 placeholder 2380 N BEACH ROAD UNIT 202
最近售出
公寓/合作社
$750,000
2 贝兹 2 浴室 1,260 平方英尺
2380 N BEACH ROAD UNIT 202

The multiple listing information is provided by the Stellar MLS from a copyrighted compilation of listings. The compilation of listings and each individual listing are ©2026-present Stellar MLS. All Rights Reserved. The information provided is for consumers' personal, noncommercial use and may not be used for any purpose other than to identify prospective properties consumers may be interested in purchasing. All properties are subject to prior sale or withdrawal. All information provided is deemed reliable but is not guaranteed accurate, and should be independently verified. Listing courtesy of: KELLER WILLIAMS ISLAND LIFE REAL ESTATE