特性
探索我们的清单
聯繫
告诉我们您的需求

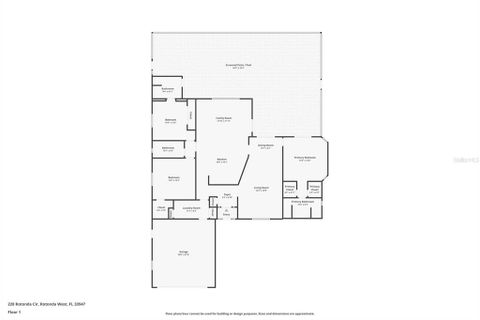
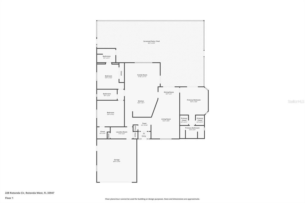
228 ROTONDA CIRCLE

房屋 待售
$400,000

BTC: 13.33333333

ETH: 200.00000000

3 贝兹
3 浴室
1,914 平方英尺
Est. 预计销售范围: $0 - $0
$0

总览

Stop Scrolling Houses! This is the one! 3 Bedroom, 3 Bath Pool Home in Rotonda West with Expansive Golf Course & Water Views! Welcome to your Florida oasis—perfectly positioned on the 15th hole of the Palms Golf Course in Rotonda West. This ideal placement offers sweeping fairway and water views that create an incredible sense of space and openness without the work of maintaining a large yard. Enjoy the beauty of wide green vistas and tranquil scenery right from your lanai and saltwater pool. You can watch the Rotonda PGA every day as well as the estuaries nearby with the evening flights of birds coming home to roost. Enjoy peace of mind with no flooding, a 2021 roof, 2020 A/C, 2021 water heater and more. This well-maintained home features a bright living room and dining combo with views of the pool, the kitchen is huge and so well thought out with a skylight, new appliances, and breakfast bar. The family room has plenty of room to relax and opens to the lanai and overlooks the pool and golf course view. The main suite has a pool view with a pocket slider for lanai access. Fully remodeled bath with a walk-in shower, dual walk-in closets, and room for a king size bed. The 2nd bedroom is a mini suite including a private en-suite guest bath with direct access to the pool overlooking the water and banana trees, offering a perfect setup for guests or a separate retreat. The 3rd bath has quartz countertops and is central to the 3rd bedroom that has a walk-in closet as well. Every room in this home has a tropical view. The outdoor living area is the highlight, featuring a new lanai and a resurfaced saltwater pool, creating an inviting space to entertain or unwind while overlooking the picturesque course and lake. The property also includes banana, orange, and lemon trees, along with a showstopping Pineapple Palm that crowns the front yard with true tropical charm. Rotonda West is a low fee ($190/yr) HOA that has a clubhouse, park and always something going on. They host wonderful events such as Bingo, cards, seasonal parades, monthly meet and greets, and a club for everything. They also maintain the lots and canals, for more info see the website www.rotondawest.org or just ask! Just minutes away are the pristine beaches of Manasota Key and Boca Grande, along with farmers' markets, restaurants, medical facilities, and MLB spring training. Whether you’re seeking a year-round residence or a seasonal getaway, this home delivers comfort, style, low-maintenance outdoor living, and an exceptional Florida lifestyle.

位置

佛罗里达 ROTONDA WEST 33947 房屋 待售

详情与特色

类型:
Residential
停车:
没有数据
建造年份:
1986
地段:
0.22 英亩
暖气:
Central / Electric
价格/平方英尺:
$209
冷气:
Central Air
HOA:
$190
更多事实和特点
  • 地板

    • Carpet

    • Laminate

    • Tile

    暖气

    • Central

    • Electric

    冷气

    • Central Air

    设备

    • Dishwasher

    • Dryer

    • Electric Water Heater

    • Microwave

    • Range

    • Refrigerator

    • Washer

    其他室内特点

    • Ceiling Fan(s)

    • Skylight(s)

    • Split Bedroom

    • Stone Counters

    • Thermostat

    • Window Treatments

    卧室和浴室

    • 卧室: 3

    • 完整的浴室: 3

  • 房屋

    • 等级: One

    • 私人泳池: 是

    • 外观特征: French Doors / Hurricane Shutters / Irrigation System / Sliding Doors

    地段

    • 地段: 0.22 英亩

    其他财产信息

    • 包裹编号: 412022254007

    • 分区: RSF5

  • 类型与风格

    • 财产种类: Residential

    • 属性子类型: Single Family Residence

  • 公益

    • BB/HS Internet Available

    • Cable Available

    • Electricity Connected

    • Phone Available

    • Sewer Connected

    • Sprinkler Recycled

    • Water Connected

  • 其他财政信息

    • HOA: $190

    • HOA频率: Annually

    • 年税额: $3,405

  • 来源细节

    • MLS ID: D6145021

    其他详情

    • 建筑材料: Block / Stucco

    • 基金会详情: Slab

    • 洗衣功能: Inside / Laundry Room

    • 地段特征: Cleared / On Golf Course

    • 天井和门廊特色: Front Porch / Porch / Rear Porch / Screened

    • 泳池特色: In Ground / Outside Bath Access / Salt Water / Screen Enclosure

    • 窗户功能: Drapes / Shades / Window Treatments

    • 方向面: West

    • 建筑风格: Florida

    • 车库空间: 2

    • 附属车库: 是

    • 车库: 是

    • 生活区域: 1914

    • 水源: Public

    • 细分名称: ROTONDA WEST PEBBLE BEACH

类似房屋

6469 BLUEBERRY DRIVE placeholder 6469 BLUEBERRY DRIVE
待售
房屋
$425,000
3 贝兹 2 浴室 1,842 平方英尺
6469 BLUEBERRY DRIVE
8087 SAINT KITTS CIRCLE placeholder 8087 SAINT KITTS CIRCLE
待售
房屋
$349,597
3 贝兹 3 浴室 1,849 平方英尺
8087 SAINT KITTS CIRCLE
61 MARK TWAIN LANE placeholder 61 MARK TWAIN LANE
2 天
待售
房屋
$349,900
3 贝兹 2 浴室 1,844 平方英尺
61 MARK TWAIN LANE
7143 S LAKE DRIVE placeholder 7143 S LAKE DRIVE
2 天
待售
房屋
$400,000
3 贝兹 2 浴室 2,006 平方英尺
7143 S LAKE DRIVE
6749 GASPARILLA PINES BOULEVARD placeholder 6749 GASPARILLA PINES BOULEVARD
2 天
待售
房屋
$289,000
2 贝兹 2 浴室 1,410 平方英尺
6749 GASPARILLA PINES BOULEVARD
29 TOURNAMENT ROAD placeholder 29 TOURNAMENT ROAD
2 天
待售
房屋
$419,000
3 贝兹 2 浴室 2,047 平方英尺
29 TOURNAMENT ROAD
33 CADDY ROAD placeholder 33 CADDY ROAD
3 天
待售
房屋
$379,000
3 贝兹 2 浴室 1,490 平方英尺
33 CADDY ROAD
1820 MEADOW LARK LANE placeholder 1820 MEADOW LARK LANE
3 天
待售
房屋
$319,900
3 贝兹 2 浴室 1,528 平方英尺
1820 MEADOW LARK LANE

The multiple listing information is provided by the Stellar MLS from a copyrighted compilation of listings. The compilation of listings and each individual listing are ©2025-present Stellar MLS. All Rights Reserved. The information provided is for consumers' personal, noncommercial use and may not be used for any purpose other than to identify prospective properties consumers may be interested in purchasing. All properties are subject to prior sale or withdrawal. All information provided is deemed reliable but is not guaranteed accurate, and should be independently verified. Listing courtesy of: MICHAEL SAUNDERS & COMPANY