特性
探索我们的清单
聯繫
告诉我们您的需求

2790 SW 22nd Ave, Miami FL 33133

房屋 待售
$1,325,000

BTC: 15.08580521

ETH: 662.50000000

3 贝兹
3 浴室
1,575 平方英尺
Est. 预计销售范围: $0 - $0
$0

总览

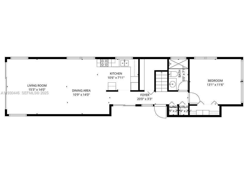
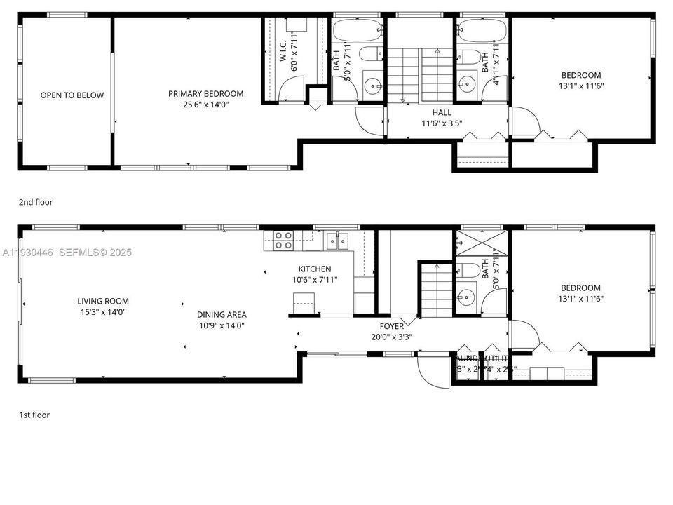
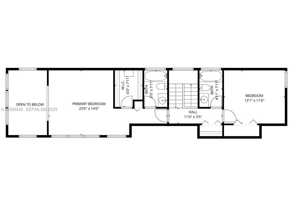
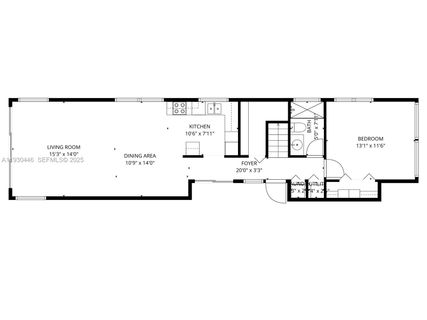
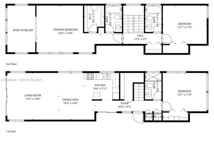
Located in prime North Coconut Grove setting, this 3-bed/3-bath residence offers a flexible floor plan and abundant natural light, providing the ideal canvas for a custom renovation. The layout features one bedroom and full bathroom on the main level, with the primary suite and an additional guest bedroom upstairs, allowing for privacy and functional living. Numerous windows throughout the home fill the interiors with natural light and enhance the home’s open, airy feel. Outdoors, the property boasts a charming back patio and a beautiful mature oak tree anchoring the backyard—perfect for entertaining, relaxing, or future landscaping enhancements. The home is well suited for buyers seeking a starter home with upside potential or investors looking for a strong resale/rental opportunity. With its desirable North Coconut Grove address, thoughtful layout, and significant renovation potential, this property offers a rare chance to personalize or reposition a home in a neighborhood known for long-term demand and lifestyle appeal.

位置

佛罗里达 迈阿密 33133 房屋 待售

详情与特色

类型:
Residential
停车:
Driveway
建造年份:
1980
地段:
2750 平方英尺
暖气:
Central
价格/平方英尺:
$841
冷气:
Central Air
HOA:
没有数据
更多事实和特点
  • 地板

    • Tile

    暖气

    • Central

    冷气

    • Central Air

    设备

    • Dishwasher

    • Disposal

    • Dryer

    • Electric Range

    • Refrigerator

    • Wall Oven

    • Washer

    其他室内特点

    • First Floor Entry

    • No Additional Rooms

    卧室和浴室

    • 卧室: 3

    • 完整的浴室: 3

  • 停车

    • Driveway

    地段

    • 地段: 2750 平方英尺

    其他财产信息

    • 包裹编号: 01-41-15-008-3100

    • 分区: 0100

  • 类型与风格

    • 财产种类: Residential

    • 属性子类型: Single Family Residence

  • 其他财政信息

    • 年税额: $5,012

  • 来源细节

    • MLS ID: A11930446

    其他详情

    • 建筑材料: Frame With Stucco

    • 地段特征: Less Than 1/4 Acre Lot

    • 天井和门廊特色: Deck

    • 方向面: North

    • 建筑风格: Detached / Two Story

    • 生活区域: 1575

    • 水源: Municipal Water

    • 细分名称: SILVER BLUFF EST SEC C

类似房屋

419 SW 30th Rd, Miami FL 33129 placeholder 419 SW 30th Rd, Miami FL 33129
待售
房屋
$1,475,000
3 贝兹 2 浴室 1,304 平方英尺
419 SW 30th Rd, Miami FL 33129
998 SW 11th St, Miami FL 33129 placeholder 998 SW 11th St, Miami FL 33129
待售
房屋
$1,600,000
5 贝兹 4 浴室 2,108 平方英尺
998 SW 11th St, Miami FL 33129
1535 SW 2nd St, Miami FL 33135 placeholder 1535 SW 2nd St, Miami FL 33135
待售
多户家庭
$1,290,000
0 room(s) 3,188 平方英尺
1535 SW 2nd St, Miami FL 33135
3689 SW 1st Ave, Miami FL 33145 placeholder 3689 SW 1st Ave, Miami FL 33145
待售
房屋
$1,100,000
3 贝兹 2 浴室 1,564 平方英尺
3689 SW 1st Ave, Miami FL 33145
3685 SW 1st Ave, Miami FL 33145 placeholder 3685 SW 1st Ave, Miami FL 33145
待售
房屋
$1,100,000
3 贝兹 2 浴室 1,588 平方英尺
3685 SW 1st Ave, Miami FL 33145
1344 SW 18th St, Miami FL 33145 placeholder 1344 SW 18th St, Miami FL 33145
1 天
待售
房屋
$1,490,000
3 贝兹 3 浴室 2,857 平方英尺
1344 SW 18th St, Miami FL 33145
801 S Miami Ave # 1805, Miami FL 33130 placeholder 801 S Miami Ave # 1805, Miami FL 33130
1 天
待售
公寓/合作社
$1,049,000
2 贝兹 2 浴室 1,152 平方英尺
801 S Miami Ave # 1805, Miami FL 33130
2308 SW 23rd Ter, Miami FL 33145 placeholder 2308 SW 23rd Ter, Miami FL 33145
3 天
待售
房屋
$983,000
2 贝兹 1 浴室 1,121 平方英尺
2308 SW 23rd Ter, Miami FL 33145

The multiple listing information is provided by the Miami Association of REALTORS® from a copyrighted compilation of listings. The compilation of listings and each individual listing are ©2025-present Miami Association of REALTORS®. All Rights Reserved. The information provided is for consumers' personal, noncommercial use and may not be used for any purpose other than to identify prospective properties consumers may be interested in purchasing. All properties are subject to prior sale or withdrawal. All information provided is deemed reliable but is not guaranteed accurate, and should be independently verified. Listing courtesy of: One Sotheby's International Realty