特性
探索我们的清单
聯繫
告诉我们您的需求

5250 SW 96th Ave, Miami FL 33165

房屋 出租
$5,000

BTC: 0.16666667

ETH: 2.50000000

/mo
-$500 (2025/11/18)
28 天
3 贝兹
2 浴室
1,387 平方英尺
Est. 预计销售范围: $0 - $0
$0

总览

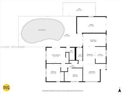
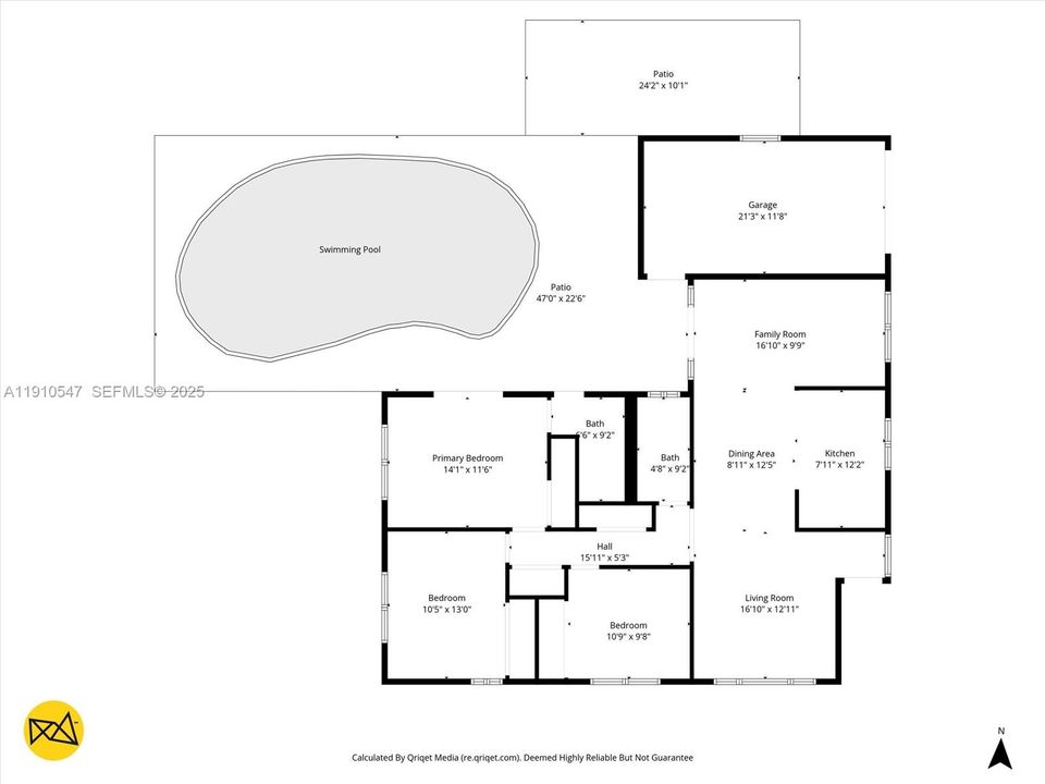
Beautifully Updated 3BD/2BA Corner Single-Family Home With Pool and NOT HOA Available for Rent! This move-in-ready residence features an open, clean layout with modern porcelain tile flooring throughout. Enjoy peace of mind with a new high-insulation roof, impact windows and doors, and a high-efficiency A/C system paired with a Nest thermostat for year-round comfort. The home offers a resurfaced pool, a spacious patio perfect for entertaining, and fresh interior and exterior paint with upgraded LED lighting. The garage has been converted into a fitness area ideal for an active lifestyle.

位置

佛罗里达 迈阿密 33165 房屋 出租

详情与特色

类型:
Residential Lease
停车:
2 Spaces / Additional Spaces Available
建造年份:
1959
地段:
8400 平方英尺
暖气:
Central
价格/平方英尺:
$4
冷气:
Central Air
HOA:
没有数据
更多事实和特点
  • 地板

    • Tile

    暖气

    • Central

    冷气

    • Central Air

    设备

    • Electric Water Heater

    • Dishwasher

    • Disposal

    • Dryer

    • Electric Range

    • Washer

    其他室内特点

    • First Floor Entry

    • Built-in Features

    • Closet Cabinetry

    • Cooking Island

    • Fire Sprinklers

    • Utility/Laundry In Garage

    卧室和浴室

    • 卧室: 3

    • 完整的浴室: 2

  • 停车

    • 2 Spaces

    • Additional Spaces Available

    房屋

    • 等级: 1

    • 外观特征: Lighting

    地段

    • 地段: 8400 平方英尺

    其他财产信息

    • 包裹编号: 30-40-21-020-0330

    • 分区: 0100

  • 类型与风格

    • 财产种类: Residential Lease

    • 属性子类型: Single Family Residence

  • 来源细节

    • MLS ID: A11910547

    其他详情

    • 建筑材料: CBS Construction

    • 洗衣功能: In Garage

    • 地段特征: Less Than 1/4 Acre Lot

    • 天井和门廊特色: Patio

    • 泳池特色: In Ground

    • 窗户功能: Clear Impact Glass / Blinds / High Impact Windows / Impact Glass

    • 方向面: East

    • 建筑风格: First Floor Entry

    • 车库空间: 1

    • 附属车库: 是

    • 车库: 是

    • 生活区域: 1387

    • 水源: Municipal Water

    • 细分名称: MILLER HEIGHTS SEC 5

类似房屋

7827 SW 106th Cir # 7827, Miami FL 33173 placeholder 7827 SW 106th Cir # 7827, Miami FL 33173
1 天
出租
联排别墅
$3,500 /mo
3 贝兹 2 浴室 1,669 平方英尺
7827 SW 106th Cir # 7827, Miami FL 33173
2911 SW 98th Ave # 0, Miami FL 33165 placeholder 2911 SW 98th Ave # 0, Miami FL 33165
1 天
出租
房屋
$5,600 /mo
3 贝兹 2 浴室 2,626 平方英尺
2911 SW 98th Ave # 0, Miami FL 33165
3225 SW 94th Ave, Miami FL 33165 placeholder 3225 SW 94th Ave, Miami FL 33165
1 天
出租
房屋
$5,200 /mo
3 贝兹 2 浴室 1,452 平方英尺
3225 SW 94th Ave, Miami FL 33165
3300 SW 94th Ct, Miami FL 33165 placeholder 3300 SW 94th Ct, Miami FL 33165
1 天
出租
房屋
$4,500 /mo
3 贝兹 2 浴室 1,350 平方英尺
3300 SW 94th Ct, Miami FL 33165
9451 SW 79th St, Miami FL 33173 placeholder 9451 SW 79th St, Miami FL 33173
3 天
出租
房屋
$3,875 /mo
3 贝兹 2 浴室 1,625 平方英尺
9451 SW 79th St, Miami FL 33173
5200 SW 114th Ct # 0, Miami FL 33165 placeholder 5200 SW 114th Ct # 0, Miami FL 33165
4 天
出租
房屋
$5,500 /mo
3 贝兹 2 浴室 1,285 平方英尺
5200 SW 114th Ct # 0, Miami FL 33165
5312 SW 89th Ct, Miami FL 33165 placeholder 5312 SW 89th Ct, Miami FL 33165
-$901 (2025/12/02)
出租
房屋
$4,999 /mo
3 贝兹 2 浴室 2,101 平方英尺
5312 SW 89th Ct, Miami FL 33165
2810 SW 108th Pl, Miami FL 33165 placeholder 2810 SW 108th Pl, Miami FL 33165
4 天
出租
房屋
$3,600 /mo
3 贝兹 2 浴室 1,577 平方英尺
2810 SW 108th Pl, Miami FL 33165

The multiple listing information is provided by the Miami Association of REALTORS® from a copyrighted compilation of listings. The compilation of listings and each individual listing are ©2025-present Miami Association of REALTORS®. All Rights Reserved. The information provided is for consumers' personal, noncommercial use and may not be used for any purpose other than to identify prospective properties consumers may be interested in purchasing. All properties are subject to prior sale or withdrawal. All information provided is deemed reliable but is not guaranteed accurate, and should be independently verified. Listing courtesy of: Coldwell Banker Realty