特性
探索我们的清单
聯繫
告诉我们您的需求

775 49th, Miami Beach, FL 33140

房屋 待售
$2,310,000

BTC: 25.38461538

ETH: 1,155.00000000

3 天
4 贝兹
3 浴室
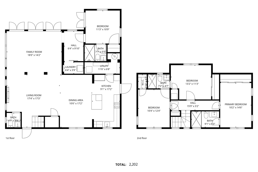
2,202 平方英尺
Est. 预计销售范围: $0 - $0
$0

总览

Welcome to this newly renovated Lakeview gem, ideally located in one of Miami Beach's most desirable neighborhoods. This updated CBS home offers 2,202 sq ft of refined living with a new roof, gutters, electrical panel, HVAC, impact windows, landscaping, fresh paint, and new downstairs flooring. Natural light fills the bright, neutral interior, while the open kitchen impresses with Statuario Italian marble, a waterfall island, Miele & Sub Zero appliances, and a butler's pantry. Enjoy an incredibly private backyard with a stunning pool, covered patio, and full fencing, plus a spacious front yard. 200 feet from Fisher Park and close to excellent schools, this move-in-ready home blends modern comfort with prime Miami Beach living.

位置

佛罗里达 迈阿密滩 33140 房屋 待售

详情与特色

类型:
Residential
停车:
2+ Spaces / Drive - Circular / Driveway
建造年份:
1935
地段:
6450 平方英尺
暖气:
Central / Electric
价格/平方英尺:
$1,049
冷气:
Ceiling Fan / Central / Electric
HOA:
没有数据
更多事实和特点
  • 地板

    • Other

    • Wood Floor

    暖气

    • Central

    • Electric

    冷气

    • Ceiling Fan

    • Central

    • Electric

    设备

    • Cooktop

    • Dishwasher

    • Disposal

    • Dryer

    • Freezer

    • Ice Maker

    • Microwave

    • Refrigerator

    • Wall Oven

    • Washer

    • Water Heater - Elec

    其他室内特点

    • Ctdrl/Vault Ceilings

    • Entry Lvl Lvng Area

    • Fireplace(s)

    • Foyer

    • Kitchen Island

    • Pantry

    • Split Bedroom

    卧室和浴室

    • 卧室: 4

    • 洗手间: 1

    • 完整的浴室: 3

  • 停车

    • 2+ Spaces

    • Drive - Circular

    • Driveway

    房屋

    • 私人泳池: 是

    • 外观特征: Covered Patio / Fence / Zoned Sprinkler

    地段

    • 地段: 6450 平方英尺

    其他财产信息

    • 包裹编号: 0232220160320

    • 分区: RS-4-RESIDENTI

  • 类型与风格

    • 财产种类: Residential

    • 属性子类型: Single Family Residence

  • 公益

    • Public Sewer

    • Public Water

  • 其他财政信息

    • 年税额: $15,627

  • 来源细节

    • MLS ID: RX-11147207

    其他详情

    • 建筑材料: CBS

    • 地段特征: Paved Road / Sidewalks

    • 天井和门廊特色: Patio / Porch

    • 泳池特色: Concrete / Inground

    • 方向面: I-95 to Exit 4 (I-195 E) to Exit 5 (FL-907 N/Alton Rd). Right onto Delaware Ave. Left onto W 49th St. 775 W 49th St is on the North side of the street.

    • 生活区域: 2202

    • 细分名称: LAKE VIEW

类似房屋

6 Farrey Ln, Miami Beach FL 33139 placeholder 6 Farrey Ln, Miami Beach FL 33139
4 天
待售
房屋
$2,900,000
2 贝兹 2 浴室 1,078 平方英尺
6 Farrey Ln, Miami Beach FL 33139
9 Island Ave # 2414, Miami Beach FL 33139 placeholder 9 Island Ave # 2414, Miami Beach FL 33139
5 天
待售
公寓/合作社
$2,200,000
3 贝兹 3 浴室 2,388 平方英尺
9 Island Ave # 2414, Miami Beach FL 33139
6899 Collins Ave # 1801, Miami Beach FL 33141 placeholder 6899 Collins Ave # 1801, Miami Beach FL 33141
6 天
待售
公寓/合作社
$2,550,000
2 贝兹 2 浴室 1,565 平方英尺
6899 Collins Ave # 1801, Miami Beach FL 33141
5775 Collins Ave # 605, Miami Beach FL 33140 placeholder 5775 Collins Ave # 605, Miami Beach FL 33140
6 天
待售
公寓/合作社
$2,850,000
2 贝兹 2 浴室 1,245 平方英尺
5775 Collins Ave # 605, Miami Beach FL 33140
2301 Collins Ave # 1625, Miami Beach FL 33139 placeholder 2301 Collins Ave # 1625, Miami Beach FL 33139
7 天
待售
公寓/合作社
$2,500,000
1 贝兹 1 浴室 850 平方英尺
2301 Collins Ave # 1625, Miami Beach FL 33139
11 Island Ave, Miami Beach FL 33139 placeholder 11 Island Ave, Miami Beach FL 33139
8 天
待售
顶层公寓
$1,795,000
2 贝兹 2 浴室 1,283 平方英尺
11 Island Ave, Miami Beach FL 33139
1680 Michigan Ave, Miami Beach FL 33139 placeholder 1680 Michigan Ave, Miami Beach FL 33139
9 天
待售
商业的
$2,750,000
0 room(s)
1680 Michigan Ave, Miami Beach FL 33139
6899 Collins Ave # 601, Miami Beach FL 33141 placeholder 6899 Collins Ave # 601, Miami Beach FL 33141
9 天
待售
公寓/合作社
$2,590,000
2 贝兹 2 浴室 1,565 平方英尺
6899 Collins Ave # 601, Miami Beach FL 33141

The multiple listing information is provided by the Beaches MLS from a copyrighted compilation of listings. The compilation of listings and each individual listing are ©2025-present Beaches MLS. All Rights Reserved. The information provided is for consumers' personal, noncommercial use and may not be used for any purpose other than to identify prospective properties consumers may be interested in purchasing. All properties are subject to prior sale or withdrawal. All information provided is deemed reliable but is not guaranteed accurate, and should be independently verified. Listing courtesy of: Compass Florida LLC