特性
探索我们的清单
聯繫
告诉我们您的需求

8320 NE 3rd Ave, Miami FL 33138

房屋 待售
$495,000

BTC: 16.50000000

ETH: 247.50000000

-$55K (2025/10/21)
114 天
4 贝兹
3 浴室
2,391 平方英尺
Est. 预计销售范围: $0 - $0
$0

总览

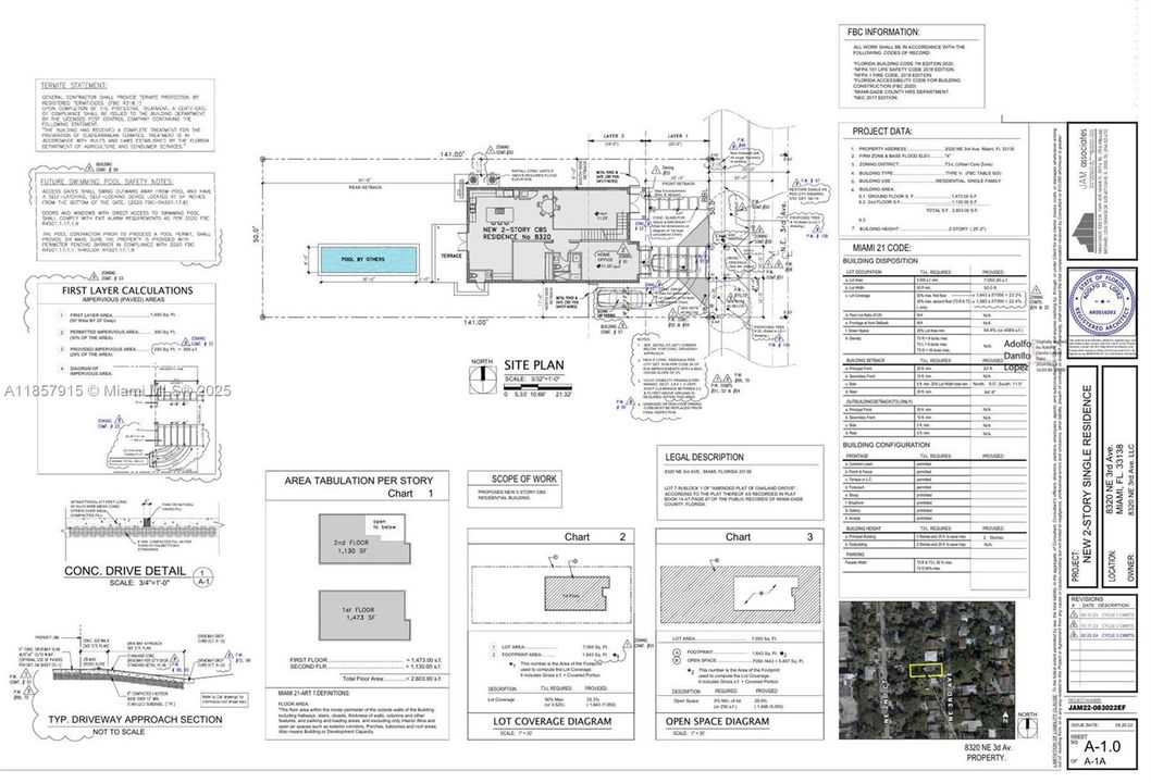
Opportunity in Little River – Lot with Approved Plans Included! Here’s your chance to get ahead of the curve in one of Miami’s hottest up-and-coming neighborhoods. Located at 8320 NE 3rd Ave, this 7,000 sq. ft. lot comes with approved plans for a stunning 2,500 sq. ft. modern home—ready for you to build and capitalize on the rapid appreciation in Little River. Remodeled homes here are already selling for $1M+, and prices continue to climb as the neighborhood gains attention from savvy investors and trendsetters alike. With a walkable location, you’re just steps from some of Miami’s most talked-about dining and lifestyle spots, including beloved restaurants, coffee shops, art spaces, and breweries. Full plans available by request.

位置

佛罗里达 迈阿密 33138 房屋 待售

详情与特色

类型:
Residential
停车:
Driveway
建造年份:
1924
地段:
7050 平方英尺
暖气:
Central
价格/平方英尺:
$207
冷气:
Central Air
HOA:
没有数据
更多事实和特点
  • 暖气

    • Central

    冷气

    • Central Air

    其他室内特点

    • First Floor Entry

    • Attic

    • Family Room

    卧室和浴室

    • 卧室: 4

    • 洗手间: 1

    • 完整的浴室: 3

  • 停车

    • Driveway

    房屋

    • 外观特征: Lighting

    地段

    • 地段: 7050 平方英尺

    其他财产信息

    • 包裹编号: 01-32-07-027-0041

    • 分区: 0104

  • 类型与风格

    • 财产种类: Residential

    • 属性子类型: Single Family Residence

  • 其他财政信息

    • 年税额: $7,601

  • 来源细节

    • MLS ID: A11857915

    其他详情

    • 建筑材料: Frame With Stucco

    • 地段特征: Less Than 1/4 Acre Lot

    • 方向面: East

    • 建筑风格: Attached / Two Story

    • 车库空间: 2

    • 车库: 是

    • 生活区域: 2391

    • 水源: Municipal Water

    • 细分名称: OAKLAND GROVE AMD PL

类似房屋

5241 NW 11th Ave, Miami FL 33127 placeholder 5241 NW 11th Ave, Miami FL 33127
待售
多户家庭
$600,000
0 room(s) 1,560 平方英尺
5241 NW 11th Ave, Miami FL 33127
10851 NE 2nd Ct, Miami FL 33161 placeholder 10851 NE 2nd Ct, Miami FL 33161
1 天
待售
房屋
$595,000
3 贝兹 2 浴室 1,267 平方英尺
10851 NE 2nd Ct, Miami FL 33161
1007 NW 120th St, North Miami FL 33168 placeholder 1007 NW 120th St, North Miami FL 33168
1 天
待售
房屋
$529,000
3 贝兹 2 浴室 1,539 平方英尺
1007 NW 120th St, North Miami FL 33168
480 NE 110th St, Miami FL 33161 placeholder 480 NE 110th St, Miami FL 33161
1 天
待售
房屋
$620,000
3 贝兹 1 浴室 1,037 平方英尺
480 NE 110th St, Miami FL 33161
408 NW 97th St, Miami FL 33150 placeholder 408 NW 97th St, Miami FL 33150
2 天
待售
多户家庭
$399,000
0 room(s) 1,549 平方英尺
408 NW 97th St, Miami FL 33150
1800 NE 114th St, Miami FL 33181 placeholder 1800 NE 114th St, Miami FL 33181
2 天
待售
顶层公寓
$570,000
2 贝兹 3 浴室 1,950 平方英尺
1800 NE 114th St, Miami FL 33181
3900 Biscayne Blvd # 813, Miami FL 33137 placeholder 3900 Biscayne Blvd # 813, Miami FL 33137
2 天
待售
公寓/合作社
$599,990
1 贝兹 1 浴室 808 平方英尺
3900 Biscayne Blvd # 813, Miami FL 33137
4000 Towerside Ter # 705, Miami FL 33138 placeholder 4000 Towerside Ter # 705, Miami FL 33138
2 天
待售
公寓/合作社
$425,000
2 贝兹 2 浴室 1,456 平方英尺
4000 Towerside Ter # 705, Miami FL 33138

The multiple listing information is provided by the Miami Association of REALTORS® from a copyrighted compilation of listings. The compilation of listings and each individual listing are ©2025-present Miami Association of REALTORS®. All Rights Reserved. The information provided is for consumers' personal, noncommercial use and may not be used for any purpose other than to identify prospective properties consumers may be interested in purchasing. All properties are subject to prior sale or withdrawal. All information provided is deemed reliable but is not guaranteed accurate, and should be independently verified. Listing courtesy of: Compass Florida, LLC