特性
探索我们的清单
聯繫
告诉我们您的需求

11300 NW 15th Ct # 11300, Pembroke Pines FL 33026

联排别墅 最近售出
$400,000

BTC: 4.60564191

ETH: 200.00000000

发售日期: 2025-04-24
14 天
滨水区
2 贝兹
2 浴室
1,318 平方英尺
Est. 预计销售范围: $0 - $0
$0

总览

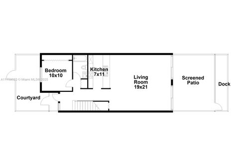
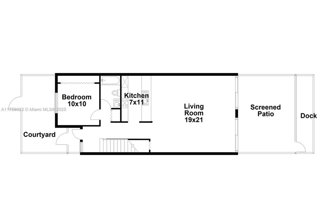
Beautifully designed 2BED 2BATH waterfront townhouse offering a perfect blend of comfort & convenience. The unique layout features a private upstairs suite w/ en-suite bathroom & walk-in closet while downstairs you’ll find a 2nd bedroom + full bath, ideal for family & guests or a home office. The open-concept living & dining area boasts plenty of natural light, creating an inviting atmosphere + a breakfast bar for casual dining. Addtl feat. incl. updated kitchen w/ SS appliances, new floors, remodeled bathrooms, plenty of storage and W+D IN UNIT. Enjoy outdoor living on the private patio, perfect for entertaining or unwinding by the water. Amenities incl. pool, tennis & basketball courts + club house. Conveniently located near all the local shops & restaurant, schools + major highways.

位置

详情与特色

类型:
Residential
停车:
2 Or More Spaces
建造年份:
1979
地段:
没有数据
暖气:
Central / Electric
价格/平方英尺:
$303
冷气:
Central Air / Electric
HOA:
$210
更多事实和特点
  • 暖气

    • Central

    • Electric

    冷气

    • Central Air

    • Electric

    设备

    • Dryer

    • Electric Range

    • Refrigerator

    • Washer

    其他室内特点

    • First Floor Entry

    卧室和浴室

    • 卧室: 2

    • 完整的浴室: 2

  • 停车

    • 2 Or More Spaces

    房屋

    • 私人泳池: 是

    • 外观特征: Other

    其他财产信息

    • 包裹编号: 514012070180

  • 类型与风格

    • 财产种类: Residential

    • 属性子类型: Townhouse

  • 其他财政信息

    • HOA: $210

    • HOA频率: Monthly

    • 年税额: $6,352

  • 来源细节

    • MLS ID: A11758023

    其他详情

    • 建筑材料: CBS Construction

    • 天井和门廊特色: Screened Porch

    • 滨水区: 是

    • 车库空间: 1

    • 车库: 是

    • 生活区域: 1318

    • 细分名称: EVERGLADES SUGAR & LAND

类似房屋

5208 SW 93rd Ave, Cooper City FL 33328 placeholder 5208 SW 93rd Ave, Cooper City FL 33328
最近售出
房屋
$350,000
3 贝兹 1 浴室 1,340 平方英尺
5208 SW 93rd Ave, Cooper City FL 33328
9500 Johnson St, Pembroke Pines FL 33024 placeholder 9500 Johnson St, Pembroke Pines FL 33024
最近售出
房屋
$450,000
3 贝兹 2 浴室 1,784 平方英尺
9500 Johnson St, Pembroke Pines FL 33024
9267 NW 17th Ct # 9267, Pembroke Pines FL 33024 placeholder 9267 NW 17th Ct # 9267, Pembroke Pines FL 33024
最近售出
房屋
$312,000
2 贝兹 1 浴室 927 平方英尺
9267 NW 17th Ct # 9267, Pembroke Pines FL 33024
12271 NW 15th St # 12271, Pembroke Pines FL 33026 placeholder 12271 NW 15th St # 12271, Pembroke Pines FL 33026
最近售出
联排别墅
$470,000
3 贝兹 3 浴室 1,802 平方英尺
12271 NW 15th St # 12271, Pembroke Pines FL 33026
9455 SW 20th St, Miramar FL 33025 placeholder 9455 SW 20th St, Miramar FL 33025
最近售出
房屋
$425,000
3 贝兹 2 浴室 1,753 平方英尺
9455 SW 20th St, Miramar FL 33025
10320 Orange Ct, Pembroke Pines FL 33026 placeholder 10320 Orange Ct, Pembroke Pines FL 33026
最近售出
房屋
$290,000
2 贝兹 1 浴室 910 平方英尺
10320 Orange Ct, Pembroke Pines FL 33026
4060 Fern Forest Rd, Cooper City FL 33026 placeholder 4060 Fern Forest Rd, Cooper City FL 33026
最近售出
房屋
$459,000
3 贝兹 2 浴室 1,797 平方英尺
4060 Fern Forest Rd, Cooper City FL 33026
5266 SW 123rd Ave # 1, Cooper City FL 33330 placeholder 5266 SW 123rd Ave # 1, Cooper City FL 33330
最近售出
联排别墅
$375,000
3 贝兹 3 浴室 1,459 平方英尺
5266 SW 123rd Ave # 1, Cooper City FL 33330

The multiple listing information is provided by the Miami Association of REALTORS® from a copyrighted compilation of listings. The compilation of listings and each individual listing are ©2025-present Miami Association of REALTORS®. All Rights Reserved. The information provided is for consumers' personal, noncommercial use and may not be used for any purpose other than to identify prospective properties consumers may be interested in purchasing. All properties are subject to prior sale or withdrawal. All information provided is deemed reliable but is not guaranteed accurate, and should be independently verified. Listing courtesy of: Keller Williams Eagle Realty