特性
探索我们的清单
聯繫
告诉我们您的需求

18417 NE 27TH COURT UNIT 18417

联排别墅 待售
$599,900

BTC: 19.99666667

ETH: 299.95000000

-$40K (2025/11/20)
55 天
3 贝兹
2 浴室
1,729 平方英尺
Est. 预计销售范围: $0 - $0
$0

总览

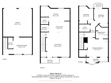
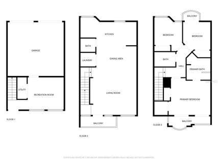
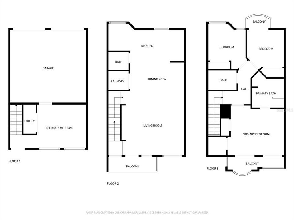
One or more photo(s) has been virtually staged. Spacious 3-story townhouse offering 3 bedrooms and 2.5 bathrooms. Enjoy an open floor plan with a kitchen bar, a living room that opens to a balcony, and a front porch that welcomes you home. Upstairs features a bedroom with its own front-facing balcony and a double vanity bathroom. Additional balconies in front and back create plenty of outdoor space to relax or entertain. The 2-car attached garage adds convenience.

位置

详情与特色

类型:
Residential
停车:
没有数据
建造年份:
2010
地段:
0.03 英亩
暖气:
Central
价格/平方英尺:
$347
冷气:
Central Air
HOA:
$970
更多事实和特点
  • 地板

    • Vinyl

    暖气

    • Central

    冷气

    • Central Air

    设备

    • Dishwasher

    • Microwave

    • Range

    • Refrigerator

    其他室内特点

    • Ceiling Fan(s)

    • Other

    卧室和浴室

    • 卧室: 3

    • 完整的浴室: 2

  • 房屋

    • 等级: One

    • 外观特征: Other / Sidewalk

    地段

    • 地段: 0.03 英亩

    其他财产信息

    • 包裹编号: 2822030820520

    • 分区: 4000

  • 类型与风格

    • 财产种类: Residential

    • 属性子类型: Townhouse

  • 公益

    • Electricity Available

    • Sewer Available

    • Water Available

  • 其他财政信息

    • HOA: $970

    • HOA频率: Monthly

    • 年税额: $7,750

  • 来源细节

    • MLS ID: O6350452

    其他详情

    • 建筑材料: Stucco

    • 基金会详情: Slab

    • 洗衣功能: Inside

    • 方向面: West

    • 车库空间: 2

    • 附属车库: 是

    • 车库: 是

    • 生活区域: 1729

    • 水源: Public

    • 细分名称: MERCO AVENTURA

类似房屋

301 174th St # 503, Sunny Isles Beach FL 33160 placeholder 301 174th St # 503, Sunny Isles Beach FL 33160
待售
公寓/合作社
$749,000
3 贝兹 3 浴室 2,400 平方英尺
301 174th St # 503, Sunny Isles Beach FL 33160
1830 S Ocean Dr # 2212, Hallandale Beach FL 33009 placeholder 1830 S Ocean Dr # 2212, Hallandale Beach FL 33009
待售
公寓/合作社
$705,000
1 贝兹 1 浴室 844 平方英尺
1830 S Ocean Dr # 2212, Hallandale Beach FL 33009
18001 Collins Ave # 2512, Sunny Isles Beach FL 33160 placeholder 18001 Collins Ave # 2512, Sunny Isles Beach FL 33160
待售
公寓/合作社
$583,000
1 浴室 551 平方英尺
18001 Collins Ave # 2512, Sunny Isles Beach FL 33160
3180 S Ocean Dr # 1012, Hallandale Beach FL 33009 placeholder 3180 S Ocean Dr # 1012, Hallandale Beach FL 33009
待售
公寓/合作社
$749,000
2 贝兹 2 浴室 1,165 平方英尺
3180 S Ocean Dr # 1012, Hallandale Beach FL 33009
16049 NE 9th PL, North Miami Beach FL 33162 placeholder 16049 NE 9th PL, North Miami Beach FL 33162
待售
房屋
$500,000
3 贝兹 1 浴室 1,050 平方英尺
16049 NE 9th PL, North Miami Beach FL 33162
1830 S Ocean Dr # 1612, Hallandale Beach FL 33009 placeholder 1830 S Ocean Dr # 1612, Hallandale Beach FL 33009
待售
公寓/合作社
$692,000
1 贝兹 1 浴室 844 平方英尺
1830 S Ocean Dr # 1612, Hallandale Beach FL 33009
18001 Collins Ave # 1110, Sunny Isles Beach FL 33160 placeholder 18001 Collins Ave # 1110, Sunny Isles Beach FL 33160
待售
公寓/合作社
$583,000
1 浴室 551 平方英尺
18001 Collins Ave # 1110, Sunny Isles Beach FL 33160
1264 NE 156th St, North Miami Beach FL 33162 placeholder 1264 NE 156th St, North Miami Beach FL 33162
待售
房屋
$459,000
4 贝兹 3 浴室 1,442 平方英尺
1264 NE 156th St, North Miami Beach FL 33162

The multiple listing information is provided by the Stellar MLS from a copyrighted compilation of listings. The compilation of listings and each individual listing are ©2025-present Stellar MLS. All Rights Reserved. The information provided is for consumers' personal, noncommercial use and may not be used for any purpose other than to identify prospective properties consumers may be interested in purchasing. All properties are subject to prior sale or withdrawal. All information provided is deemed reliable but is not guaranteed accurate, and should be independently verified. Listing courtesy of: MAINSTAY BROKERAGE LLC