特性
探索我们的清单
聯繫
告诉我们您的需求

3929 CAPE HAZE DRIVE UNIT 105

联排别墅 合同活跃
$275,000

BTC: 4.00687142

ETH: 136.50691221

20 天
3 贝兹
2 浴室
2,044 平方英尺
Est. 预计销售范围: $0 - $0
$0

总览

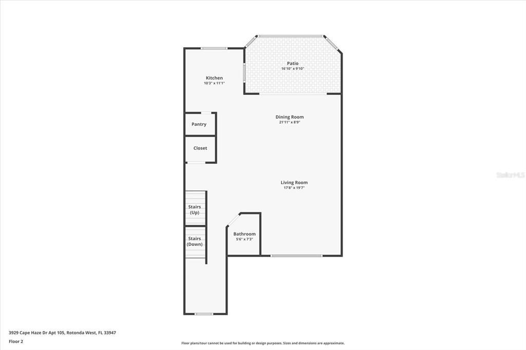
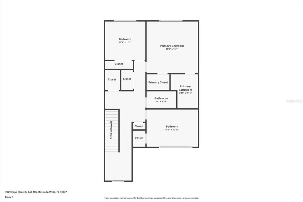
Beautifully Updated Cape Haze Condo Overlooking Coral Creek Preserve! Enjoy easy Florida living in this spacious 3-bedroom, 2.5-bath condo perfectly positioned in the desirable Cape Haze area. All storm repairs have been completed and there are NO ADDITIONAL ASSESMENTS allowing you to move in with confidence. Offering a low-maintenance lifestyle, this home features an open main-floor layout with peaceful views of the Coral Creek Preserve and is just minutes from the pristine beaches of Boca Grande and Englewood. A PRIVATE elevator provides convenient access to all levels, while a designer-remodeled kitchen and new flooring throughout give the home a fresh, modern feel. The baths have been updated as well to a fresh designer feel. There is extensive room in the garage for all the toys with a BBQ pad facing the preserve or an Relax by the beautifully landscaped community pool, you won't need to paint anything or mow the yard! Worry free living gives you time to explore the nearby charm of historic Dearborn Street with its weekly farmers markets, boutique shopping, and great dining. Golfers will appreciate the proximity to world-class courses, and everyday essentials such as medical facilities and retail options are just a short drive away. There are miles of biking trails that lead to stunning parks with water views and kayak launches. Publix is nearby for its world-famous pub subs and lemonades to pack for the boat trips! Whether you're seeking a full-time residence, seasonal retreat, or investment opportunity, this move-in-ready condo offers the perfect blend of comfort, convenience, and coastal appeal. Check out the 360 Tour and Floorplan you'll love the views! Don’t miss your chance to own a slice of Cape Haze paradise!

位置

详情与特色

类型:
Residential
停车:
Garage Door Opener
建造年份:
2006
地段:
0.03 英亩
暖气:
Heat Pump
价格/平方英尺:
$135
冷气:
Central Air
HOA:
$6,300
更多事实和特点
  • 地板

    • Carpet

    • Laminate

    • Tile

    暖气

    • Heat Pump

    冷气

    • Central Air

    设备

    • Dishwasher

    • Microwave

    • Range

    • Refrigerator

    其他室内特点

    • Ceiling Fan(s)

    • Elevator

    • Solid Surface Counters

    • Walk-In Closet(s)

    卧室和浴室

    • 卧室: 3

    • 洗手间: 1

    • 完整的浴室: 2

  • 停车

    • Garage Door Opener

    房屋

    • 等级: Three Or More

    • 外观特征: Sliding Doors

    地段

    • 地段: 0.03 英亩

    其他财产信息

    • 包裹编号: 412034677037

    • 分区: RMF10

  • 类型与风格

    • 财产种类: Residential

    • 属性子类型: Townhouse

  • 公益

    • BB/HS Internet Available

    • Electricity Connected

    • Phone Available

  • 其他财政信息

    • HOA: $6,300

    • HOA频率: Annually

    • 年税额: $3,057

  • 来源细节

    • MLS ID: D6144712

    其他详情

    • 建筑材料: Block / Stucco

    • 基金会详情: Slab

    • 洗衣功能: Laundry Room

    • 天井和门廊特色: Rear Porch / Screened

    • 方向面: West

    • 车库空间: 1

    • 附属车库: 是

    • 车库: 是

    • 生活区域: 2044

    • 水源: Public

    • 细分名称: TOWNHOUSES/CAPE HAZE

类似房屋

81 OAKLAND HILLS PLACE placeholder 81 OAKLAND HILLS PLACE
2 天
合同活跃
房屋
$209,900
3 贝兹 2 浴室 1,539 平方英尺
81 OAKLAND HILLS PLACE
34 MEDALIST CIRCLE placeholder 34 MEDALIST CIRCLE
14 天
合同活跃
房屋
$349,900
3 贝兹 2 浴室 2,012 平方英尺
34 MEDALIST CIRCLE
8159 ARCHIE STREET placeholder 8159 ARCHIE STREET
20 天
合同活跃
房屋
$239,000
2 贝兹 2 浴室 1,020 平方英尺
8159 ARCHIE STREET
8087 SAINT KITTS CIRCLE placeholder 8087 SAINT KITTS CIRCLE
24 天
合同活跃
房屋
$349,597
3 贝兹 3 浴室 1,849 平方英尺
8087 SAINT KITTS CIRCLE
15 WHITE MARSH LANE placeholder 15 WHITE MARSH LANE
-$10K (2025/12/10)
合同活跃
房屋
$340,000
3 贝兹 2 浴室 1,614 平方英尺
15 WHITE MARSH LANE
201 ARLINGTON DRIVE placeholder 201 ARLINGTON DRIVE
29 天
合同活跃
房屋
$350,000
3 贝兹 3 浴室 2,012 平方英尺
201 ARLINGTON DRIVE
8074 SAINT KITTS CIRCLE placeholder 8074 SAINT KITTS CIRCLE
30 天
合同活跃
房屋
$354,597
4 贝兹 3 浴室 2,032 平方英尺
8074 SAINT KITTS CIRCLE
179 LONG MEADOW LANE placeholder 179 LONG MEADOW LANE
-$40K (2025/11/30)
合同活跃
房屋
$275,000
3 贝兹 2 浴室 2,287 平方英尺
179 LONG MEADOW LANE

The multiple listing information is provided by the Stellar MLS from a copyrighted compilation of listings. The compilation of listings and each individual listing are ©2026-present Stellar MLS. All Rights Reserved. The information provided is for consumers' personal, noncommercial use and may not be used for any purpose other than to identify prospective properties consumers may be interested in purchasing. All properties are subject to prior sale or withdrawal. All information provided is deemed reliable but is not guaranteed accurate, and should be independently verified. Listing courtesy of: MICHAEL SAUNDERS & COMPANY